EasyManua.ls Logo

CombiLift C5000XL - Grease Point Chart

Default Icon
72 pages
Print Icon
To Next Page IconTo Next Page
To Next Page IconTo Next Page
To Previous Page IconTo Previous Page
To Previous Page IconTo Previous Page
Loading...
Combilift Ltd. C4000-C5000XL O&S Manual
4-15
C4000-OM-EN-08
In order to change the air filter Cartridge, take the following steps:
1. Open the access panel from the side of the machine
2. Remove the end cap from the filter housing
3. Remove the existing air filter cartridge and replace with the new
cartridge. Only use a genuine Combilift component.
4. Replace the End cap of the housing ensuring that the Dust valve is
pointing downwards as shown.
5. Close the access panel on the side of the machine
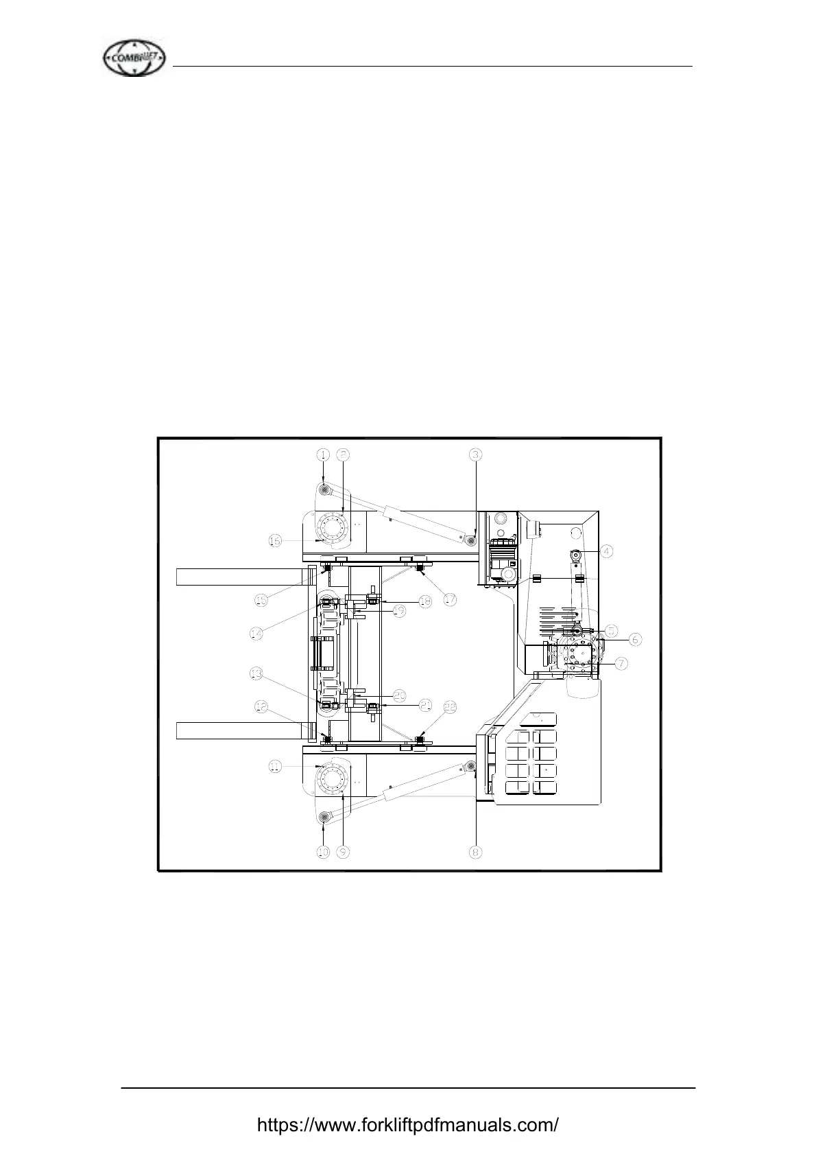
4.11: Grease Point Chart
The diagram below indicates all of the points on the Combilift that must be
greased regularly. A copy of this diagram is located in the operator
compartment in the form of a decal / Information sticker. All Points should be
greased weekly with an appropriate EP2 grease.
1. Steering Front
2. Swivel back
3. Steering back
4. Rear Steering
5. Rear Steering
6. Swivel Front
7. Swivel back
8. Steering back
9. Swivel front
10. Steering front
11. Front Bearing
12. Carriage Bearing
13. Front tilt
14. Front tilt
15. Carriage Bearing
16. Swivel Front
17. Carriage Bearing
18. Rear Tilt
19. Mast bushing
20. Mast Bushing
21. Rear Tilt
22. Carriage Bearing
https://www.forkliftpdfmanuals.com/

Related product manuals