EasyManua.ls Logo

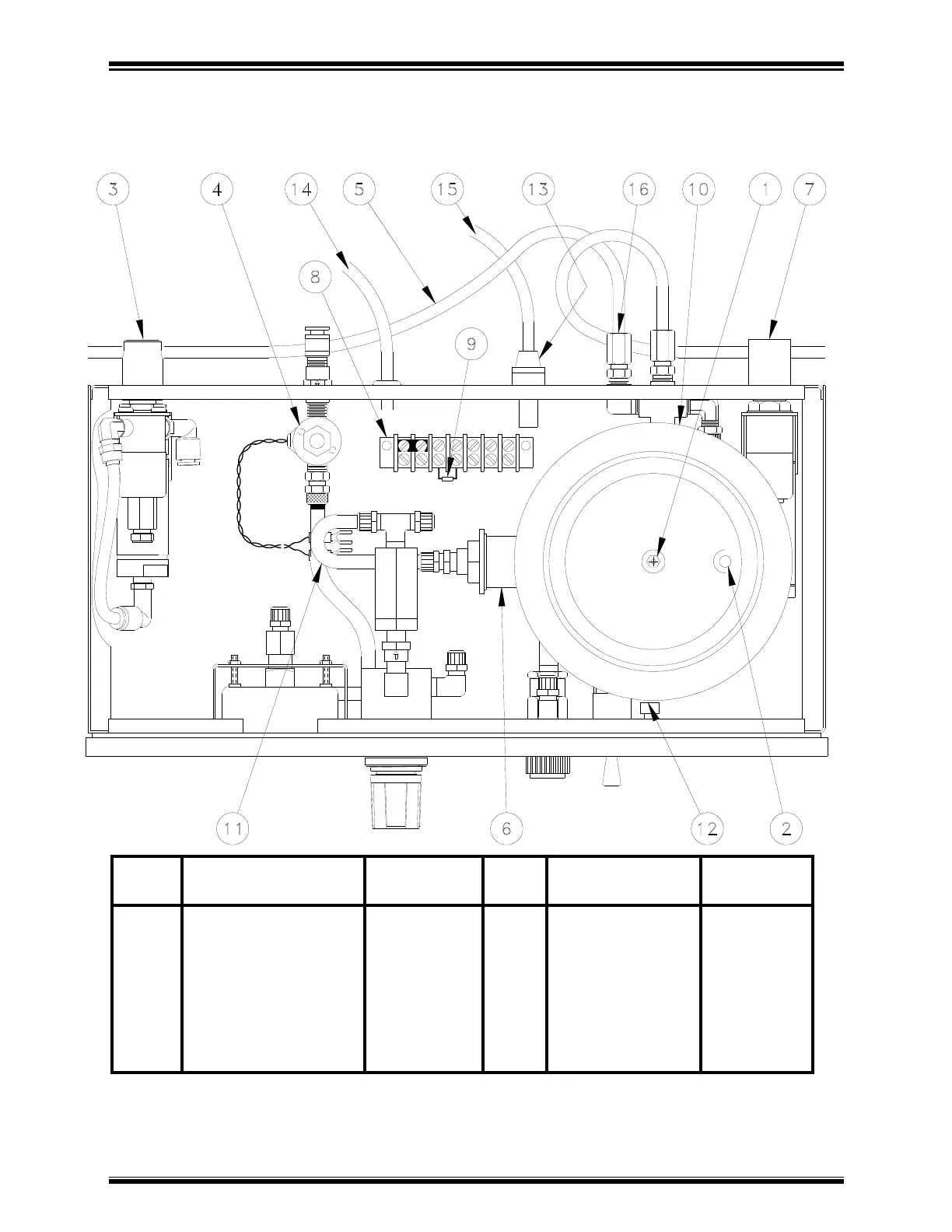
Comco MicroBlaster MB1000 - Figure 2: Top View

Default Icon
102 pages
Print Icon
To Next Page IconTo Next Page
To Next Page IconTo Next Page
To Previous Page IconTo Previous Page
To Previous Page IconTo Previous Page
Loading...
Appendix B: Drawings and Schematics MicroBlaster MB1000
Comco Inc. B-4 Issue Date: July 2016
FIGURE 2: TOP VIEW, MODEL MB1000
Item
No.
Description
Part No.
Item
No.
Description
Part No.
1
2
3
4
5
6
7
8
Tank Orifice
By-pass Tube
Vent Pinch Assy
Air Valve
Abrasive Hose
Modulator
Abrasive Pinch Assy
Block, Terminal
[1]
MB1025-5
[2]
[2]
MB1233
[2]
[2]
ST7007-7
9
10
11
12
13
14
15
16
Diode, Assy
Abrasive Tank
Tube, Plastic
Socket, Neon
Fuse, Holder
Footswitch
Power Cord
Quicknut Conn.
MB1229
[2]
ST4012
MB1227-1
ST7005
ST7015
ST7016
MB1455
[1] Tank Orifice size may be changed. Refer to Section 3 of the Manual.
[2] See individual Part Drawing for Part Number.