EasyManua.ls Logo

Comprag A1108 - Electrical Diagram and Main Components

Default Icon
104 pages
Print Icon
To Next Page IconTo Next Page
To Next Page IconTo Next Page
To Previous Page IconTo Previous Page
To Previous Page IconTo Previous Page
Loading...
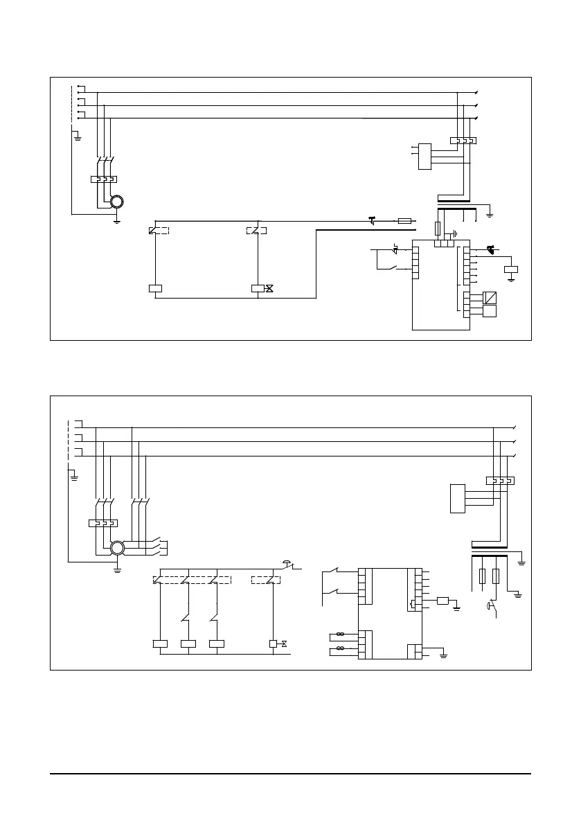
15COMPRAG Screw air compressor A-Series
2.6 Electrical diagram and main components
3~~380
1
2
3
4
5
6
1
2
3
4
1
2
1
2
3
4
5
Х01
Х02
Х03
204
203
205
207
1
2
3
1
2
3
QS
102
302
11
22
33
MKC1
11
22
33
SB1.1
301
380v
24v
F1
200
220v
202
101
102
P
I
T
MKC1.1
TN1.1
Х04
302
401
K 5
103 102
SB1.2
R
TR
К1.1
1
203
204
209
200
102
203 202
2A
201
200
YA
Re1
K1
K 5.1
1
2
2
3
3
TN1
М1
Fig. 2.4 Electrical diagram A07.., AR07.., ARD07..*
*For RDX Electrical diagram refer to the relevant documentation.
М1
3~380
6
5
4
3
2
1
2
1
1
2
3
4
5
Х01 Х04
NO (R4)/Delta
203
401
103
К1 К2
К3
К3
1
2
3
1
2
3
1
2 3
1 2 3
TN1
К1
К2
Rе2 Rе4
Rе3 K5.1
YA
1
2
3
1
2 3
QS
33
22
11
MKC-08
11
22
33
301
380v
33
22
1
2
3
4
S01
S02
S03
S04
204 206 208
205 207
203
202
209
200
SB1.1
K3.1
K2.1
201
101
F1
F2
202
102
200
103
301
301
Х03
102
NO (R3)/Star
NO (R2)/Main
K5
Х02
TN1.1
MKC-08
P
SB1.2
R
TR
Fig. 2.5 Electrical diagram A11.. – A22.., AR11.. – AR22.., ARD11.. – ARD22..*,
*For RDX Electrical diagram refer to the relevant documentation.

Table of Contents

Related product manuals