EasyManua.ls Logo

Comprag A1808 - Elektro-Schaltplan

Default Icon
104 pages
Print Icon
To Next Page IconTo Next Page
To Next Page IconTo Next Page
To Previous Page IconTo Previous Page
To Previous Page IconTo Previous Page
Loading...
49COMPRAG Schraubenkompressoren A-Serie
Lastlauf:
Wenn der Luftverbrauch wieder stattndet, verringert sich der Netzdruck.
Wenn der Netzdruck die untere vorangestellte Grenze erreicht (Einschaltdruck), schaltet
die Steuerung das Magnetventil (6) ein, und die pneumatische Steuerleitung des
Einlassventils (1) erhält einen Steuerdruck.
1. Der Steuerdruck kommt aus dem Luft-/Ölabscheidetank (7) durch das eingeschaltete
Magnetventil (6) in das Einlassventil und öffnet den Schieber (2).
2. Das Entlastungsventil (5) bleibt geschlossen.
3. Der Kompressor liefert wieder Druckluft (100%) und bendet sich im Lastlauf.
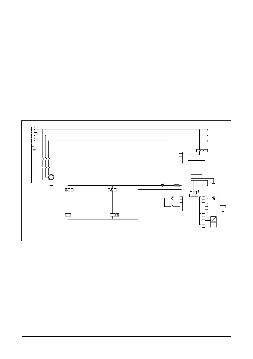
2.6 Elektro-Schaltplan
3~~380
1
2
3
4
5
6
1
2
3
4
1
2
1
2
3
4
5
Х01
Х02
Х03
204
203
205
207
1
2
3
1
2
3
QS
102
302
11
22
33
MKC1
11
22
33
SB1.1
301
380v
24v
F1
200
220v
202
101
102
P
I
T
MKC1.1
TN1.1
Х04
302
401
K 5
103 102
SB1.2
R
TR
К1.1
1
203
204
209
200
102
203 202
2A
201
200
YA
Re1
K1
K 5.1
1
2
2
3
3
TN1
М1
Bild 2.4 Elektro-Schaltplan A07.., AR07.., ARD07..*
*Elektro-Schaltplan für RDX in der zugehörigen Dokumentation.

Table of Contents

Related product manuals