EasyManua.ls Logo

Comunello CU 24V 2M ONE - Installazione

Comunello CU 24V 2M ONE
Print Icon
To Next Page IconTo Next Page
To Next Page IconTo Next Page
To Previous Page IconTo Previous Page
To Previous Page IconTo Previous Page
Loading...
13
COMUNELLO ®Copyright 2019 - All rights reserved
ITALIANO
condizioni.
Vericare che il luogo di installazione sia idoneo e rispetti le dimensioni
minime riportate in FIG. 1.
INSTALLAZIONE
Dopo aver forato la scatola ai quattro angoli ssare la centrale alla parete
(FIG. 2).
Per il passaggio dei cavi forare la parte inferiore della scatola. (FIG. 3).
È consigliabile l’utilizzo di pressacavi.
COLLEGAMENTI ELETTRICI
CN1 Connettore kit batteria (AC51) di emergenza 24V
CN2 Connettore di alimentazione da rete 230V~ 50/60Hz
CN3 Primario Trasformatore (tensione da rete)
CN4 Secondario Trasformatore (alimentazione motori)
CN5 Secondario trasformatore (alimentazione linea BUS)
CN6 Riferimento planimetria
MOT1 +: Uscita Motore 1 (+)
MOT1-: Uscita Motore 1 (-)
MOT2 +: Uscita Motore 2 (+)
MOT2 -: Uscita Motore 2 (-)
OUT AUX +24V: Uscita Servizio (Lampeggiante AUX o Elettroserratura)
+24V
OUT AUX -24V: Uscita Servizio (Lampeggiante AUX o Elettroserratura)
-24V
FC MOT1 FCC: Ingresso Finecorsa Chiusura Motore 1 (N.C.)
FC MOT1 GND: Ingresso Finecorsa Comune Motore 1
FC MOT1 FCA: Ingresso Finecorsa Apertura Motore 1 (N.C.)
ENC MOT1 E1: Ingresso Encoder Motore 1 (encoder 2 li)
ENC MOT1 E2: Ingresso Encoder Motore 1
ENC MOT2 E1: Ingresso Encoder Motore 2 (encoder 2 li)
ENC MOT2 E2: Ingresso Encoder Motore 2
CN7
ENC MOT1 +: Ingresso Alimentazione Encoder Motore 1
ENC MOT1 GND: Ingresso Comune Encoder Motore 1
ENC MOT1 E: Ingresso Segnale Encoder Motore 1
CN8
8K2-ANT 8K2: Ingresso Stop 8k2
8K2-ANT GND: Ingresso Comune (8k2 e Antenna)
8K2-ANT ANT+: Ingresso Antenna
CN9
BUS: Ingresso linea BUS per accessori
FUSIBILI
F1: T3.15A 250V
F2: T15A 250V
F3: T3.15A 250V
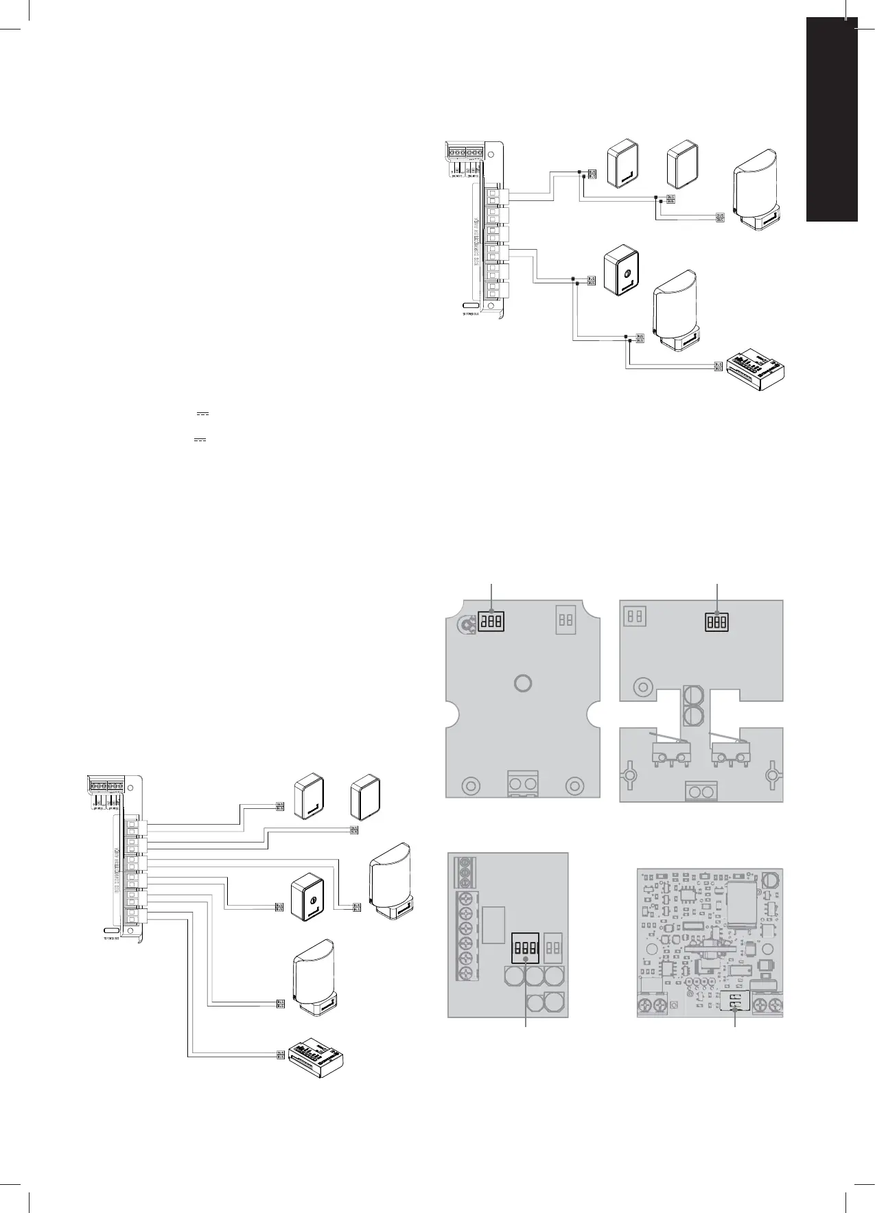
CONNESSIONE BUS CENTRO STELLA
CONNESSIONE BUS CATENA
INDIRIZZAMENTO DEGLI ACCESSORI (LINEA BUS)
La centrale ONE prevede l’utilizzo di accessori ONE collegati esclusivamente
tramite linea digitale (BUS) a due li non polarizzati. Ogni accessorio
(lampeggiante, fotocellule RX e TX, selettore a chiave, scheda IO, …) dovrà
essere collegato con soli due li (morsetti linea BUS) alla centrale. Sulla
linea BUS transitano sia l’alimentazione che i comandi digitali per il controllo
degli accessori.
Ogni accessorio, della stessa famiglia, collegato alla linea BUS dovrà essere
identicato con un ID numerico UNICO (diverso da ogni altro accessorio
della stessa tipologia). L’impostazione ID di ogni accessorio viene effettuata
tramite DIP-SWITCH accessibili in scheda:
Dip switch ID Dip switch ID
Dip switch ID
DART INDEX
INTERFACCIA I/O
SWIFT
Dip switch ID

Related product manuals