EasyManua.ls Logo

Consul 2.35 - Foundation Details for Lifts Over 4 Tons (EL Version)

Consul 2.35
80 pages
Print Icon
To Next Page IconTo Next Page
To Next Page IconTo Next Page
To Previous Page IconTo Previous Page
To Previous Page IconTo Previous Page
Loading...
OPERATING & INSTALLATION INSTRUCTION 2-POST-LIFT
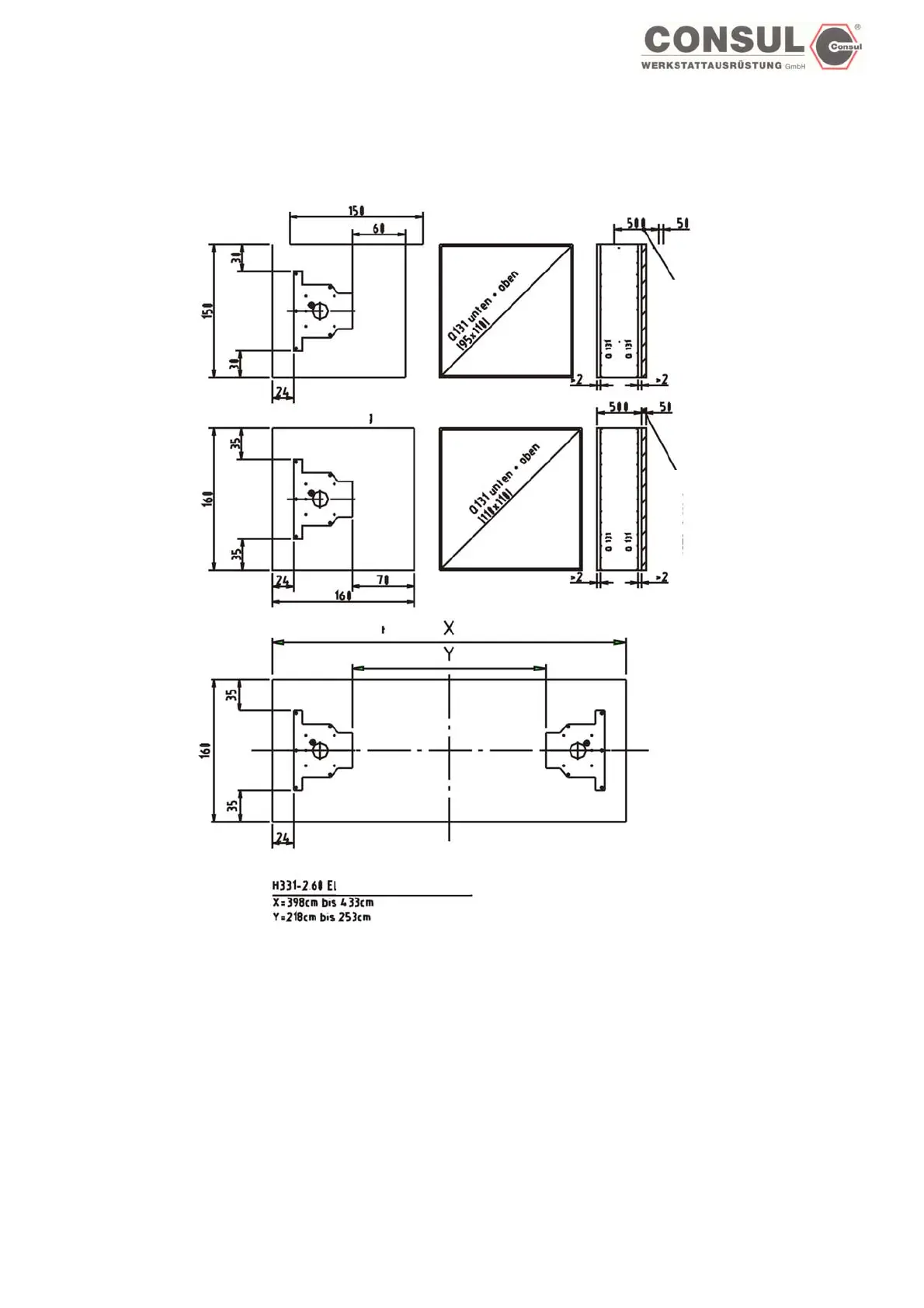
Foundation for lifts over 4 to EL version
Single foundation reinforcement
Blinding concrete Blinding concrete
Concrete plate B25
thickness s = > 21 cm
permissible a
sx
= 2,57 cm²/m - under reinforcement BST 500 M
permissible a
Sx,y
= 3,77 cm²/m - above reinforcementBST 500M
Column fitting: for ex. Heavy anchor HSL TZ M16
or UPAT UKA 3 M16
Important: Always follow the assembly instructions and keep to the min. anchoring depths
specified by the dowel manufacturers. Individual certificats must be provided for anchroing on an
exixting reinforced concrete ceiling.
Tests on existing concrete floor are necessary for anchoring!
Page 30

Table of Contents

Related product manuals