EasyManua.ls Logo

Consul 2.35 - Foundation Details for Chain Lifts H264;H265

Consul 2.35
80 pages
Print Icon
To Next Page IconTo Next Page
To Next Page IconTo Next Page
To Previous Page IconTo Previous Page
To Previous Page IconTo Previous Page
Loading...
OPERATING & INSTALLATION INSTRUCTION 2-POST-LIFT
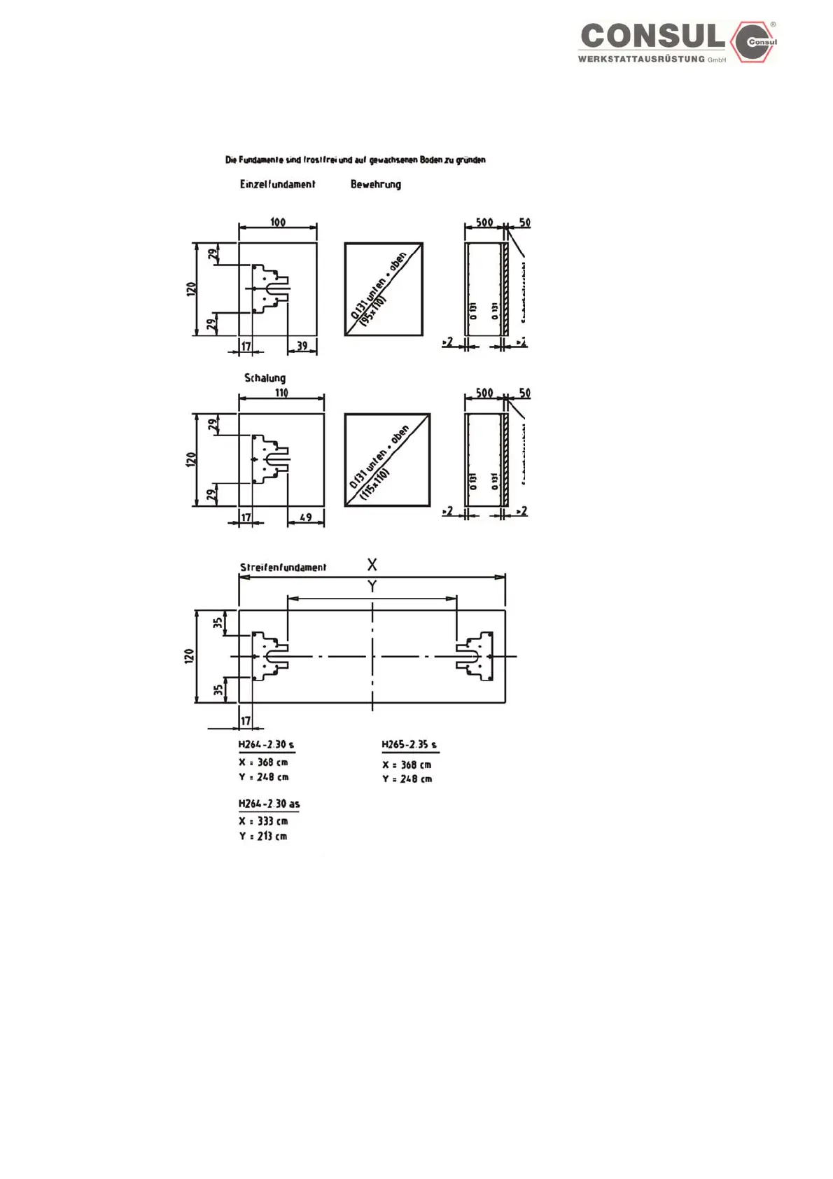
Foundation chain lifts H264/H265
Underground
Permissible
sigma
b
=200KN/m²
B25, BST 500 M
Concrete floor > 2,0 cm
Permissible
sigma
B
> = 150 kN/m²
B 25, BST 500 M
Concrete floor > 2,0 cm
Concrete plate B25
thickness s = > 21 cm
permissible a
sx
= 2,57 cm²/m - under reinforcement BST 500 M
permissible a
Sx,y
= 3,77 cm²/m - above reinforcement BST 500M
Column fitting: for ex. Liebig adhesive anchors Type 12
for Hilti HVA/HAS-M12x110
Important: Always follow the assembly instructions and keep to the min. anchoring depths specified by
the dowel manufacturers. Individual certificats must be provided for anchoring on an exixting
reinforced concrete ceiling.
Tests on existing concrete floor are necessary for anchoring!
Page 32

Table of Contents

Related product manuals