EasyManua.ls Logo

Control Techniques Unidrive M100 - Page 13

Control Techniques Unidrive M100
42 pages
Print Icon
To Next Page IconTo Next Page
To Next Page IconTo Next Page
To Previous Page IconTo Previous Page
To Previous Page IconTo Previous Page
Loading...
Guide pas à pas pour l’Unidrive M100/M101/M200/M201/M300 13
Édition : 1
English Français Deutsch Italiano Español
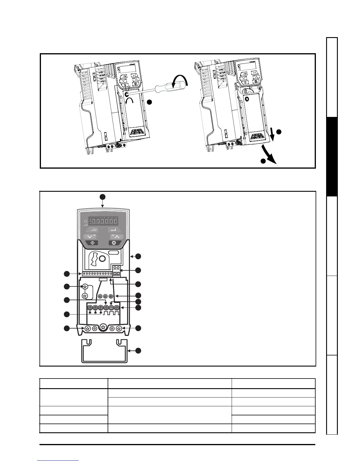
ÉTAPE 6 : Démontage du capot
1. À l’aide d’un tournevis plat, faire tourner le clip de fixation du capot d’environ 30° dans le sens anti-horaire.
2. Faire glisser le capot vers le bas.
3. Retirer le capot dans le sens indiqué.
ÉTAPE 7 : Identification des caractéristiques du variateur
Figure 7-1 Schéma de localisation (taille 2 illustrée)
Tableau 7-1 Couples de serrage recommandés
Tailles Description du bornier Couple de serrage
Toutes
Bornes de contrôle 0,2 N m
Bornes de relais 0,5 N m
1
Bornes de puissance
0,5 N m
2, 3, 4 1,4 N m
Toutes Bornes de terre 1,5 N m
2
3
1
+
EMC
MOV
L1 L2 L3
U V W - + BR
2
1
3
12
10
7
5
11
11
9
8
6
4
13
Légende
1. Étiquette de valeurs nominales (sur le côté du variateur)
2. Étiquette d'identification
3. Connexions relais
4. Raccordements de contrôle
5. Borne de freinage
6. Vis du filtre CEM interne*
7. Bus DC +
8. Bus DC -
9. Raccordements au moteur
10. Raccordement de l'alimentation AC
11. Raccordements à la terre
12. Bornes d'Absence sûre du couple (STO)**
13. Étrier de mise à la terre à visser sur les bornes de
terre (11)
* Avant de retirer la vis, consulter la section 4.7.2 du
Guide d’installation - Puissance.
** Unidrive M300 uniquement.

Related product manuals