EasyManua.ls Logo

Control Techniques Unidrive M100 - Page 23

Control Techniques Unidrive M100
42 pages
Print Icon
To Next Page IconTo Next Page
To Next Page IconTo Next Page
To Previous Page IconTo Previous Page
To Previous Page IconTo Previous Page
Loading...
Schritt-für-Schritt-Anleitung Unidrive M100/M101/M200/M201/M300 23
Ausgabenummer: 1
English Français Deutsch Italiano Español
SCHRITT 9: Einschalten des Umrichters
Stellen Sie sicher, dass die Umrichterfreigabe nicht gesetzt ist, d. h. Klemme 11 (bzw. Klemmen 31 und 34
beim Unidrive M300) offen ist (sind).
Stellen Sie sicher, dass das Drehrichtungssignal nicht gesetzt ist und Klemmen 12 und 13 offen sind
(Unidrive M100, M200 und M300).
Stellen Sie sicher, dass der Motor an den Umrichter angeschlossen ist.
Stellen Sie sicher, dass der Motor korrekt angeschlossen ist (Δ oder Y).
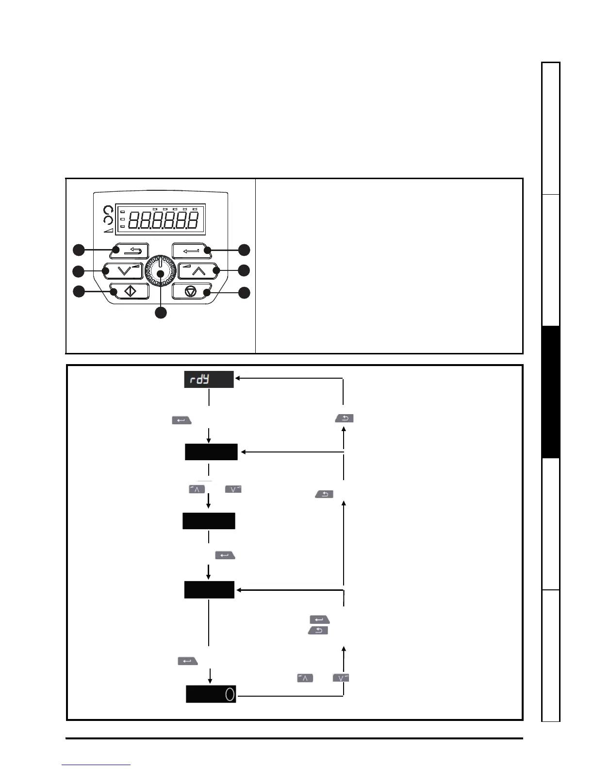
SCHRITT 10: Verwendung der Bedieneinheit
Das Display zeigt dem Benutzer Informationen zum Betriebszustand des Umrichters, Alarmen und
Abschaltungscodes an. Die Bedieneinheit bietet die Möglichkeit, Parameter zu ändern, den Umrichter zu starten
und zu stoppen sowie den Umrichter zurückzusetzen.
1
V A Hz rpm %
4
1
2
3
5
6
7
(1) Die Enter-Taste dient dem Aufruf des Anzeige- oder
Bearbeitungsmodus der Parameter oder der Bestätigung eines
bearbeiteten Parameters.
(2 / 6) Die Navigationstasten dienen zur Auswahl eines bestimmten
Parameters oder zur Bearbeitung von Parameterwerten.
(3) Die Stop/Reset-Taste (rot) dient zum Anhalten des Umrichters
im Keypad-Modus (aktiviert beim Unidrive M101 & M201).
Sie kann auch zum Rücksetzen des Umrichters im Modus für
Klemmenansteuerung verwendet werden.
(4) Die Drehzahlsollwert-Potentiometer-Taste dient zur Regelung
des Frequenzsollwerts (nur beim Unidrive M101 und M201).
(5) Die Start-Taste (grün) dient zum Starten des Umrichters im
Keypad-Modus (aktiviert beim Unidrive M101 und M201).
(7) Die Escape-Taste dient zum Verlassen des Modus
Parameterbearbeitung/-anzeige.
Pr 10
Pr 01
0.00
0.00
Status-
modus
Zum Wechseln in den Modus ‚Parameter anzeigen‘
drücken Sie
Parameter-
Anzeigemodus
Anzeige des
Parameterwerts
Um den Parameter auszuwählen,
drücken Sie oder
Zur Anzeige des Parameterwerts
drücken Sie die Taste
Zum Wechseln in den Bearbeitungsmodus
die Taste drücken
Zur Rückkehr zum Statusmodus
drücken Sie
Zur Rückkehr zum Parameter-Anzeigemodus
drücken Sie
Modus ,Parameter ändern’ (bearbeitete Ziffer blinkt)
Durch Halten von oder wird der Wert erhöht bzw. verringert.
Um zur Ansicht Parameterwerte zurückzukehren,
drücken Sie die Taste , um den neuen Parameterwert zu behalten
drücken Sie die Taste , um den neuen Parameterwert zu ignorieren
und den Parameterwert auf den Wert vor der Bearbeitung zurückzusetzen

Related product manuals