EasyManua.ls Logo

Control Techniques Unidrive M100 - Page 29

Control Techniques Unidrive M100
42 pages
Print Icon
To Next Page IconTo Next Page
To Next Page IconTo Next Page
To Previous Page IconTo Previous Page
To Previous Page IconTo Previous Page
Loading...
Unidrive M100/M101/M200/M201/M300 Guida dettagliata 29
Versione numero: 1
English Français Deutsch Italiano Español
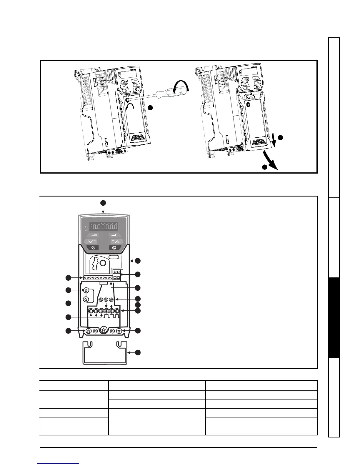
FASE 6: Rimuovere la copertura dei terminali
1. Servendosi di un cacciavite a taglio, ruotare la clip di fissaggio della copertura dei terminali in senso antiorario
di circa 30°.
2. Fare scorrere la copertura dei terminali verso il basso.
3. Rimuovere la copertura dei terminali nella direzione mostrata.
FASE 7: Identificare le caratteristiche dell'azionamento
Figura 7-1 Diagramma dei componenti (taglia 2 nell'immagine)
Tabella 7-1 Coppie di serraggio raccomandate
Taglia modello Descrizione morsettiera Impostazioni della coppia di serraggio
Tutti
Terminali di controllo 0,2 N m
Terminali dei relè 0,5 N m
1
Terminali di potenza
0,5 N m
2, 3, 4 1,4 N m
Tutti Terminali di terra 1,5 N m
2
3
1
+
EMC
MOV
L1 L2 L3
U V W - + BR
2
1
3
12
10
7
5
11
11
9
8
6
4
13
Legenda
1. Etichetta dei valori caratteristici
(su un lato dell'azionamento)
2. Targhetta di identificazione
3. Collegamenti relè
4. Collegamenti dei terminali di controllo
5. Terminale di frenatura
6. Vite di fissaggio filtro EMC interno*
7. DC Bus +
8. DC Bus -
9. Connessioni motore
10. Collegamenti alimentazione in c.a.
11. Collegamenti di terra
12. Terminali Safe Torque Off (STO)**
13. Staffa cavi da fissare ai terminali di terra (11)
* Prima di rimuovere la vite, fare riferimento alla
sezione 4.7.2 della Guida ai collegamenti elettrici.
** Solo Unidrive M300.

Related product manuals