EasyManua.ls Logo

Control Techniques Unidrive M100 - Page 37

Control Techniques Unidrive M100
42 pages
Print Icon
To Next Page IconTo Next Page
To Next Page IconTo Next Page
To Previous Page IconTo Previous Page
To Previous Page IconTo Previous Page
Loading...
Unidrive M100/M101/M200/M201/M300 Guía detallada 37
Publicación: 1
English Français Deutsch Italiano Español
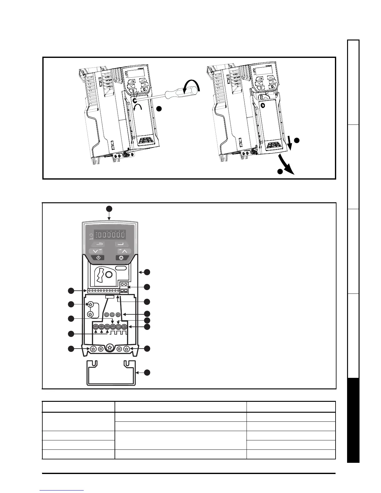
PASO 6: Extracción de la tapa de terminales
1. Utilice un destornillador de punta plana para girar el cierre de la tapa de terminales a la izquierda unos 30°.
2. Deslice la tapa de terminales hacia abajo.
3. Extraiga la tapa de terminales en la dirección indicada.
PASO 7: Identificación de las prestaciones del accionamiento
Figura 7-1 Diagrama de características (se muestra el tamaño 2)
Tabla 7-1 Valores de par recomendados
Tamaño de modelo Descripción del bloque de terminales Ajustes de par
Todos
Terminales de control 0,2 N m
Terminales de relé 0,5 N m
1
Terminales de alimentación
0,5 N m
2, 3, 4 1,4 N m
Todos Terminales de tierra 1,5 N m
2
3
1
+
EMC
MOV
L1 L2 L3
U V W - + BR
2
1
3
12
10
7
5
11
11
9
8
6
4
13
Código
1. Etiqueta de capacidad nominal (en un lado del
accionamiento)
2. Etiqueta de identificación
3. Conexiones de relé
4. Conexiones de control
5. Terminal de frenado
6. Tornillo de filtro EMC interno*
7. Bus de CC +
8. Bus de CC -
9. Conexiones del motor
10. Conexiones de alimentación de CA
11. Conexiones a tierra
12. Terminales Safe Torque Off (STO)**
13. Abrazadera de cables para enroscarla en los
terminales de conexión a tierra (11)
* Antes de retirar el tornillo, consulte la sección 4.7.2
de la Guía de instalación.
** Solo Unidrive M300.

Related product manuals