EasyManua.ls Logo

Control Techniques Unidrive M100 - Page 7

Control Techniques Unidrive M100
42 pages
Print Icon
To Next Page IconTo Next Page
To Next Page IconTo Next Page
To Previous Page IconTo Previous Page
To Previous Page IconTo Previous Page
Loading...
Unidrive M100/M101/M200/M201/M300 Step By Step Guide 7
Issue Number: 1
English
French German Italian Spanish
STEP 9: Power up the drive
Ensure the drive enable signal is not given, terminal 11 (or terminal 31 and 34 on Unidrive M300) is open.
Ensure the run signal is not given, terminal 12 and 13 are open (Unidrive M100, M200 and M300).
Ensure the motor is connected to the drive.
Ensure the motor connection (Δ or Y) is correct.
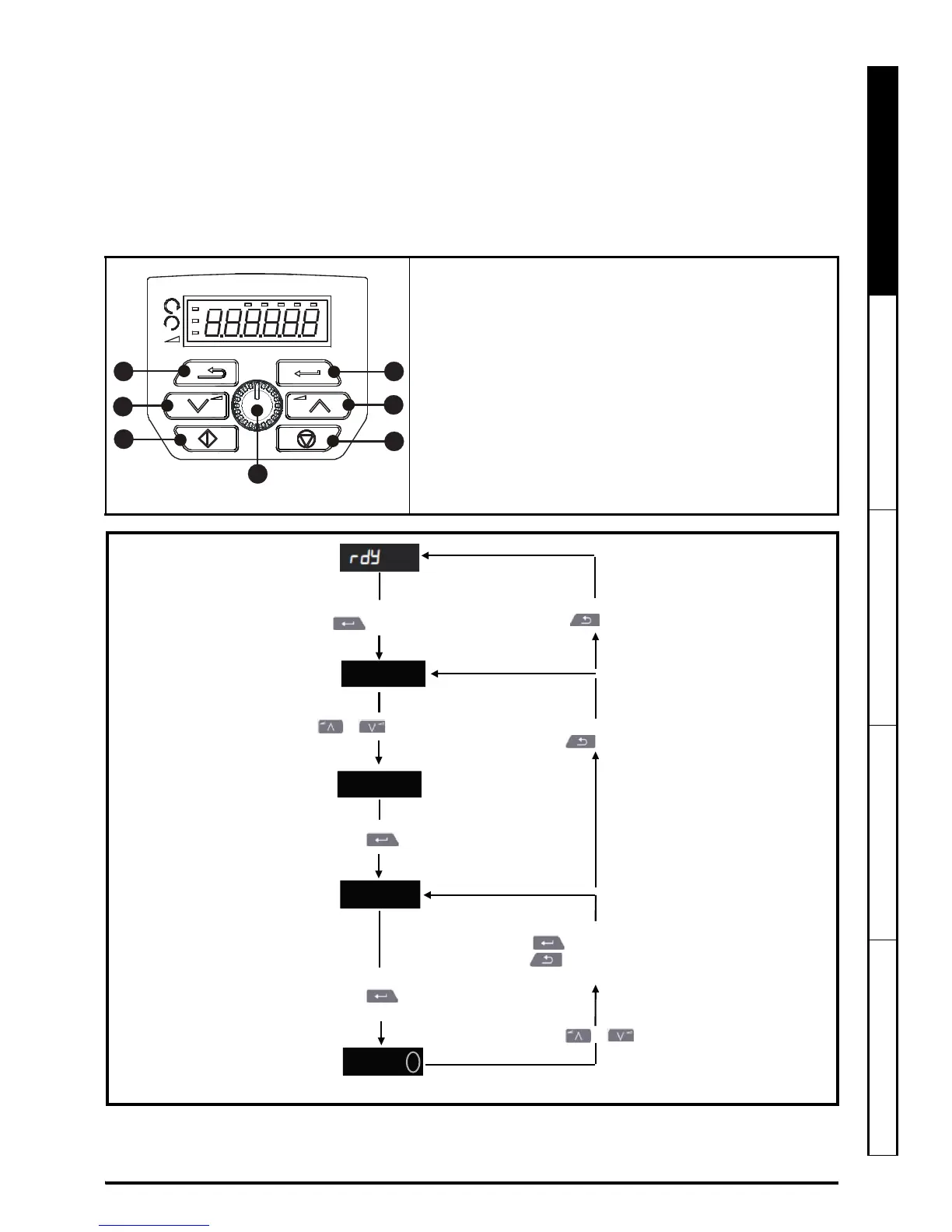
STEP 10: Use the keypad
The display provides information to the user regarding the operating status of the drive, alarms and trip code.
The keypad provides the means for changing parameters, stopping and starting the drive, and the ability to perform
a drive reset.
1
V A Hz rpm %
4
1
2
3
5
6
7
(1) The Enter button is used to enter parameter view or edit mode,
or to accept a parameter edit.
(2 / 6) The Navigation buttons can be used to select individual
parameters or to edit parameter values.
(3) The Stop / Reset button (red) is used to stop and reset the
drive in keypad mode (enabled for Unidrive M101 and M201). It
can also be used to reset the drive in terminal mode.
(4) The Speed Ref Potentiometer is used to control the frequency
reference (only on Unidrive M101 and M201).
(5) The Start button (green) is used to start the drive in keypad
mode (enabled for Unidrive M101 and M201).
(7) The Escape button is used to exit from the parameter edit /
view mode.
To return to Status Mode,
press button
To return to Parameter View Mode,
press button
Press or to select parameter
Status
Mode
To enter Parameter View Mode,
press button
Parameter
View Mode
Pr 10
Pr 01
0.00
0.00
To view parameter value
press button
To enter Edit Mode,
press button
0.00
Edit Mode (edited digit flashes)
Holding or increases or decreases value
Parameter
Value View
To return to Parameter Value View
press button to keep the new value
press
button to ignore new value and
return the parameter to the pre-edited value

Related product manuals