EasyManua.ls Logo

Control Techniques Unidrive M200 - Page 39

Control Techniques Unidrive M200
52 pages
Print Icon
To Next Page IconTo Next Page
To Next Page IconTo Next Page
To Previous Page IconTo Previous Page
To Previous Page IconTo Previous Page
Loading...
Guida dettagliata a Unidrive M200/M201/M300 39
Versione numero: 1
English Français Deutsch
Italiano
Español
FASE 9: Accensione dell'azionamento
Assicurarsi che il segnale di abilitazione azionamento non sia applicato, terminale 11 (o terminali 31 e 35 su
Unidrive M300) aperto.
Assicurarsi che il segnale di marcia non sia applicato, terminali 12 e 13 aperti (Unidrive M200 e M300).
Assicurarsi che il motore sia collegato all'azionamento.
Assicurarsi che il collegamento del motore (Δ o Y) sia corretto.
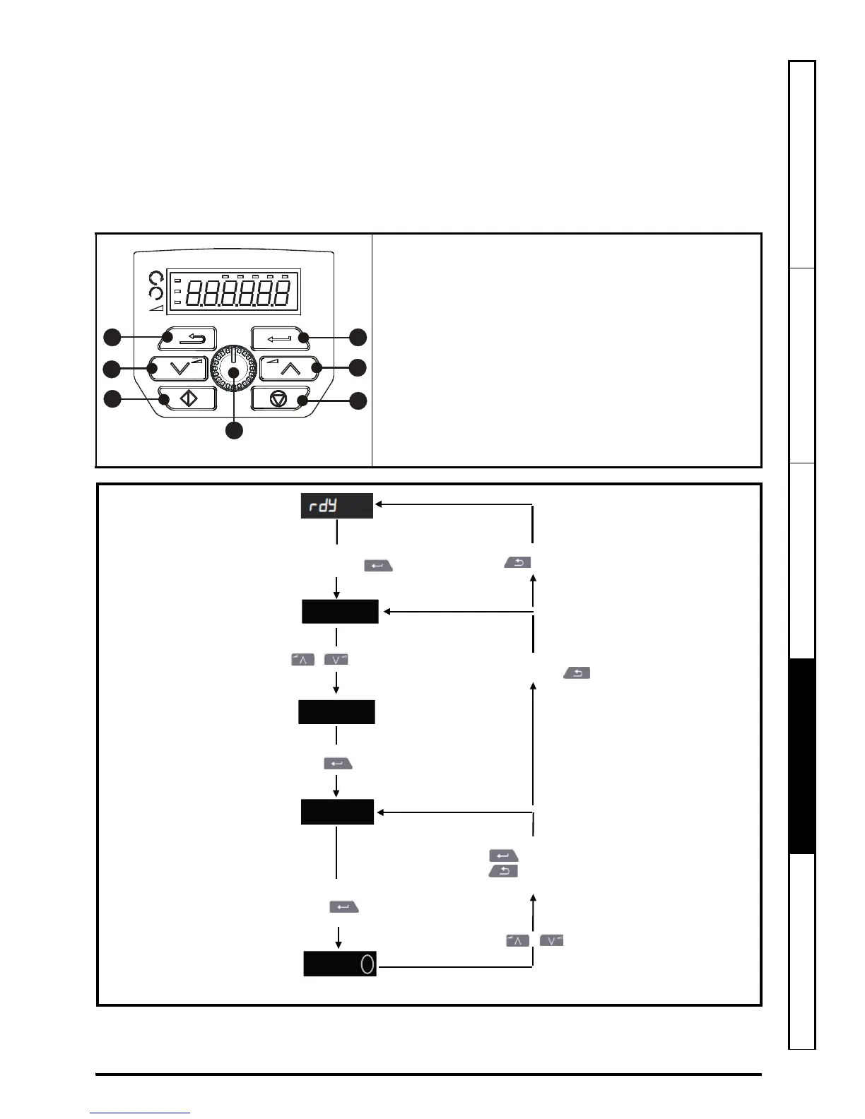
FASE 10: Utilizzare il tastierino
Il display fornisce informazioni sullo stato operativo dell'azionamento, sugli allarmi e sui codici di allarme.
Il tastierino consente di modificare i parametri, di arrestare e di avviare l'azionamento e di resettarlo.
1
V A Hz rpm %
4
1
2
3
5
6
7
(1) Il tasto Invio serve per accedere alla modalità di visualizzazione o di
modifica dei parametri, oppure per confermare la modifica apportata
a un parametro.
(2 / 6) I tasti di Navigazione servono per selezionare parametri singoli
o per modificare i valori dei parametri.
(3) Il tasto Arresto / Reset (rosso) serve, nella modalità tastiera,
per arrestare e resettare l'azionamento (abilitato per Unidrive M201).
Può inoltre essere utilizzata per resettare l'azionamento nella modalità
terminale.
(4) Il Potenziometro rif. velocità serve per controllare il riferimento di
frequenza (solo in Unidrive M201).
(5) Il tasto Avvio (verde) serve per avviare l'azionamento nella
modalità tastiera (abilitato per Unidrive M201).
(7) Il tasto Esci serve per uscire dalla modalità modifica /
visualizzazione parametri.
Pr 10
Pr 01
0.00
0.00
Modalità
di Stato
Modalità
Visualizzazione
parametri
Visualizzazione del
valore parametro
Modalità modifica
(il valore modificato lampeggia)
Per entrare nella modalità Visualizzazione
parametri, premere il tasto
Premere o per selezionare
il parametro
Per visualizzare il valore del parametro,
premere il tasto
Per tornare alla modalità Stato,
premere
Per tornare alla modalità Visualizzazione
parametri, premere il tasto
Per entrare nella modalità Modifica,
premere il tasto
Tenere premuto o per aumentare
o diminuire il valore
Per tornare alla Visualizzazione del valore parametro
premere il tasto per conservare il nuovo valore
premere il tasto per ignorare il nuovo valore e
riportare il parametro al valore precedente alla modifica

Related product manuals