EasyManua.ls Logo

Control Techniques Unidrive M200 - Page 47

Control Techniques Unidrive M200
52 pages
Print Icon
To Next Page IconTo Next Page
To Next Page IconTo Next Page
To Previous Page IconTo Previous Page
To Previous Page IconTo Previous Page
Loading...
Unidrive M200/M201/M300 Guía detallada 47
Edición: 1
English Français Deutsch Italiano
Español
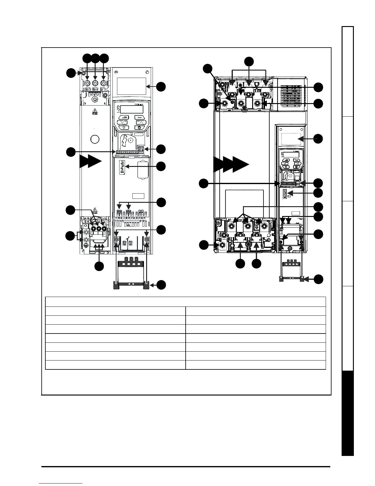
PASO 7: Identificación de las características del accionamiento
Figura 7-1 Diagrama de características
PE
+DC -DC
U
V
W
L1 L2 L3
6
5
5
1
41 42
2
3
4
7
7
8
9
+DC
BRAKE
8
10
11
13
7 8
9
12
5
1
2
7
U V W
5
12
12
12 12
910
8
12
1
1
2
3
13
11
4
5
6
7
6
5
Código
1. Etiqueta de capacidad nominal 2. Conexiones de relé
3. Ranura 1 para módulo de opciones 4. Conexiones del motor
5. Conexiones a tierra 6. Conexiones de alimentación de CA
7. Conexiones de control 8. Bus de CC +
9. Bus de CC - 10. Terminal de frenado
11. Abrazadera de cable a los terminales de tierra 12. Tornillo de filtro EMC interno*
13. Terminales Safe Torque Off (STO)**
* Antes de retirar el tornillo, consulte el capítulo 4 de la Guía de instalación.
** Solo Unidrive M300.

Related product manuals