EasyManua.ls Logo

Cooper F6-PA-LS - Radio Mounting Accessory

Cooper F6-PA-LS
48 pages
Print Icon
To Next Page IconTo Next Page
To Next Page IconTo Next Page
To Previous Page IconTo Previous Page
To Previous Page IconTo Previous Page
Loading...
Radio Mounting Accessory
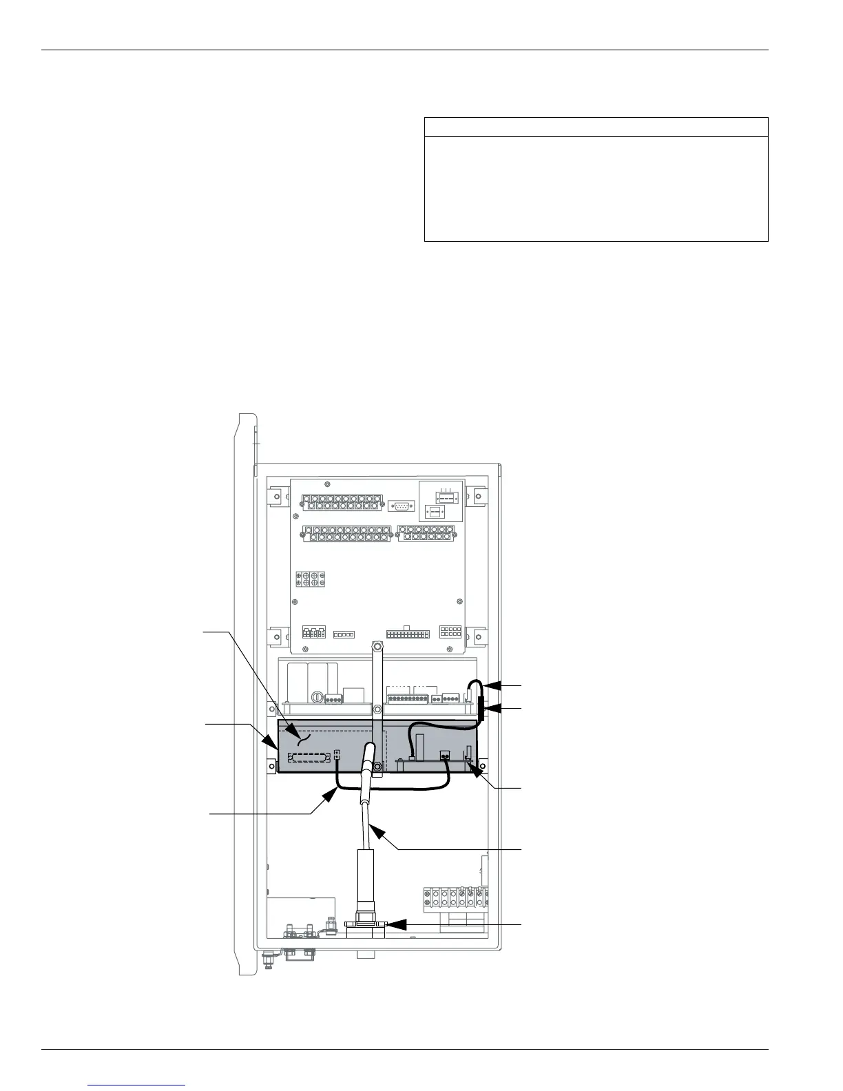
The radio mounting accessory (Figure 25) is powered from
a voltage regulated power supply factory-calibrated with
an output of 13.8 VDC.
The radio power supply input is fused by a 1 Amp in-line
fuse for a nominal voltage of 28 VDC. The output is 13.8
VDC between P2-1 (+) and P2-2 (-) on the radio power
supply circuit board with a maximum continuous watt
rating of 17.25W @ 13.8 VDC.
Note: This output cannot be field-calibrated.
The radio will continue to operate during the loss of AC
power as long as power is supplied from the battery. The
power supply is designed to provide up to 40 Watts (peak)
and is fused to isolate any potential radio problems without
disturbing the protection system in the recloser control.
Refer to Table 9.
Contact your Cooper Power Systems representative for
any additional voltage requirements.
Form 6-LS Pole Mount Recloser Control Installation and Operation Instructions
34
Radio-Mounting
Bracket
24 Vdc to 13.8 Vdc
Converter
Customer-Supplied
Power Leads
Radio Antenna
Cable (only
available with full
automation accessory)
Power Cable
Antenna Surge
Suppresser and
Connector (only
available with full
automation accessory)
Customer-Supplied
Radio
J1-RS-232
IRIG-B
RS-485
RS-232 DTE
TB9
+
28 VDC
WHETTING VOLTAGE
P1
P2
P3
P4
VOLTAGE SENSING
53VDC CONTROL CABLE28 VAC
1
2
3
45
1
2
3
45
23
22
21
20
19
11
10
9
87
18
17
16
15
14
6
5
4
32
13
1
24
12
1
2
3
4
5
3
1
3
1
3
4
2
4
24
1
2
C + –
In-Line 1 Amp Fuse
+
1
2
P2
Figure 25.
Form 6-LS control radio mounting accessory.
Description Catalog Number
Full Automation accessory
12 VDC radio provision ................ KME6-1774-5
(Radio and fiber-optic/RS232 interface not included)
Automation accessory (bracket only)
12 VDC provision ...................... KME6-1774-4
TABLE 9
Radio Mounting Accessories