EasyManua.ls Logo

Corken D891 - Page 44

Default Icon
100 pages
Print Icon
To Next Page IconTo Next Page
To Next Page IconTo Next Page
To Previous Page IconTo Previous Page
To Previous Page IconTo Previous Page
Loading...
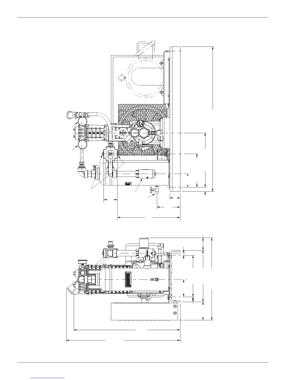
All dimensions are in inches (millimeters).
Appendix DOutline Dimensions
5/8
(16)
5
(127)
23-7/8 (607)
42 (1,067)
15-3/4 (400)
1-1/4
(32)
9-11/16 (246 )
3-7/8
(98)
6-3/4
(171)
18-3/16
(462)
3 (76)
4 (102)
12 (305)
1-1/2
(38)
15 (381)
5-5/16
(135)
3-9/16
(91)
33
(838)
Overall to
optional
relief valve
30-13/16
(782)
Overall
Liquid drain
1/4" NPT
Inlet / Outlet
4-way valve
1" NPT
Strainer
Suction
Pressure
Gauge
Discharge
Pressure
Gauge
Model 291 with 107 Mounting (Motor Frames Up to 215T)
44

Table of Contents

Related product manuals