EasyManua.ls Logo

Corken F291 - Page 52

Default Icon
100 pages
Print Icon
To Next Page IconTo Next Page
To Next Page IconTo Next Page
To Previous Page IconTo Previous Page
To Previous Page IconTo Previous Page
Loading...
All dimensions are in inches (millimeters).
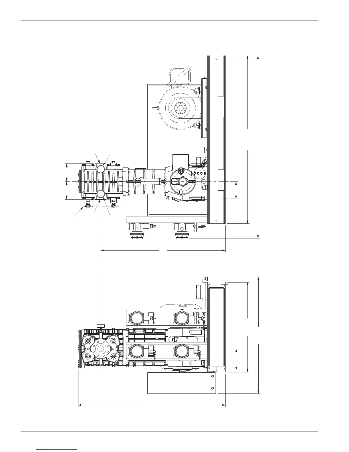
Appendix DOutline Dimensions
Model FD891 with 103 Mounting
56 (1,423)
30 (762)
61 (1,550)
Overall with switches
39 (991)
Overall
5-3/4
(147)
7-1/16
(180)
6
(152)
6
(152)
41-5/8
(1,058)
Outlet:
2" Class 300
RF ange
Inlet:
2" Class 300
RF ange
Outlet
pressure
gauge
Inlet
pressure
gauge
Suction valve
unloaders
(optional)
49-3/16
(1,250)
overall
52

Table of Contents

Related product manuals