EasyManua.ls Logo

Corken F291 - Page 56

Default Icon
100 pages
Print Icon
To Next Page IconTo Next Page
To Next Page IconTo Next Page
To Previous Page IconTo Previous Page
To Previous Page IconTo Previous Page
Loading...
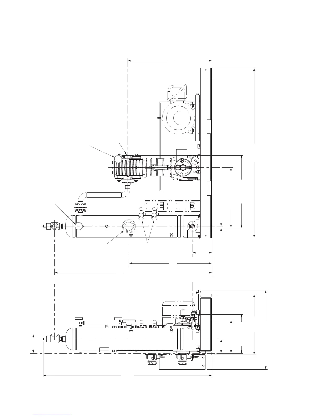
All dimensions are in inches (millimeters).
Appendix DOutline Dimensions
Model D891 with 109B Mounting
84 (2,134)
overall
35-3/4 (908)
29-3/4 (756)
41-5/8
(1,057)
3/4
(19)
39 (991)
overall
30 (762)
16-7/16 (418)
19-3/16 (487)
7-1/16
(179)
9-1/2
(241)
83-3/8
(2,118)
overall
9-7/16
(240)
41
(1,041)
77-3/4
(1,975)
Outlet:
2" Class 300
RF ange
Inlet:
2" Class 300
RF ange
Discharge
pressure
gauge
Suction
pressure
gauge
Liquid
level
switches
56

Table of Contents

Related product manuals