EasyManua.ls Logo

CountyLine CL30215 - Page 8

CountyLine CL30215
24 pages
Print Icon
To Next Page IconTo Next Page
To Next Page IconTo Next Page
To Previous Page IconTo Previous Page
To Previous Page IconTo Previous Page
Loading...
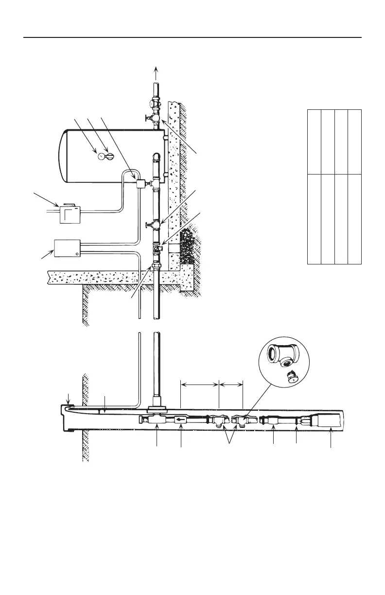
Installation 8
Pitless
adaptor
Check
valve
Bleeder
orifice and tee
Pipe
coupling
Tape cable
to pipe
Pump
Ventilated well cap
Submersible cable
Union
Submersible motor control
(3 wire models)
Electrical disconnect
Pressure gauge
Air volume control
Pressure switch
To house
service
Gate valve
Relief valve
2 ft.
(.6 m)
See table
6472 1111
Figure 11 – Typical Standard Tank Installation
Check Valve Distance to Top Bleeder Orifice
Tank Size - Gallon (L) Distance Ft. (m)
42 (159) 2 (.6)
82 (310.4) 3 (.9)
120 (454.2) 5 (1.5)

Related product manuals