EasyManua.ls Logo

Culligan CTM 21 - Page 37

Culligan CTM 21
81 pages
Print Icon
To Next Page IconTo Next Page
To Next Page IconTo Next Page
To Previous Page IconTo Previous Page
To Previous Page IconTo Previous Page
Loading...
Installing Accessories 33
Cat. No. 01029343
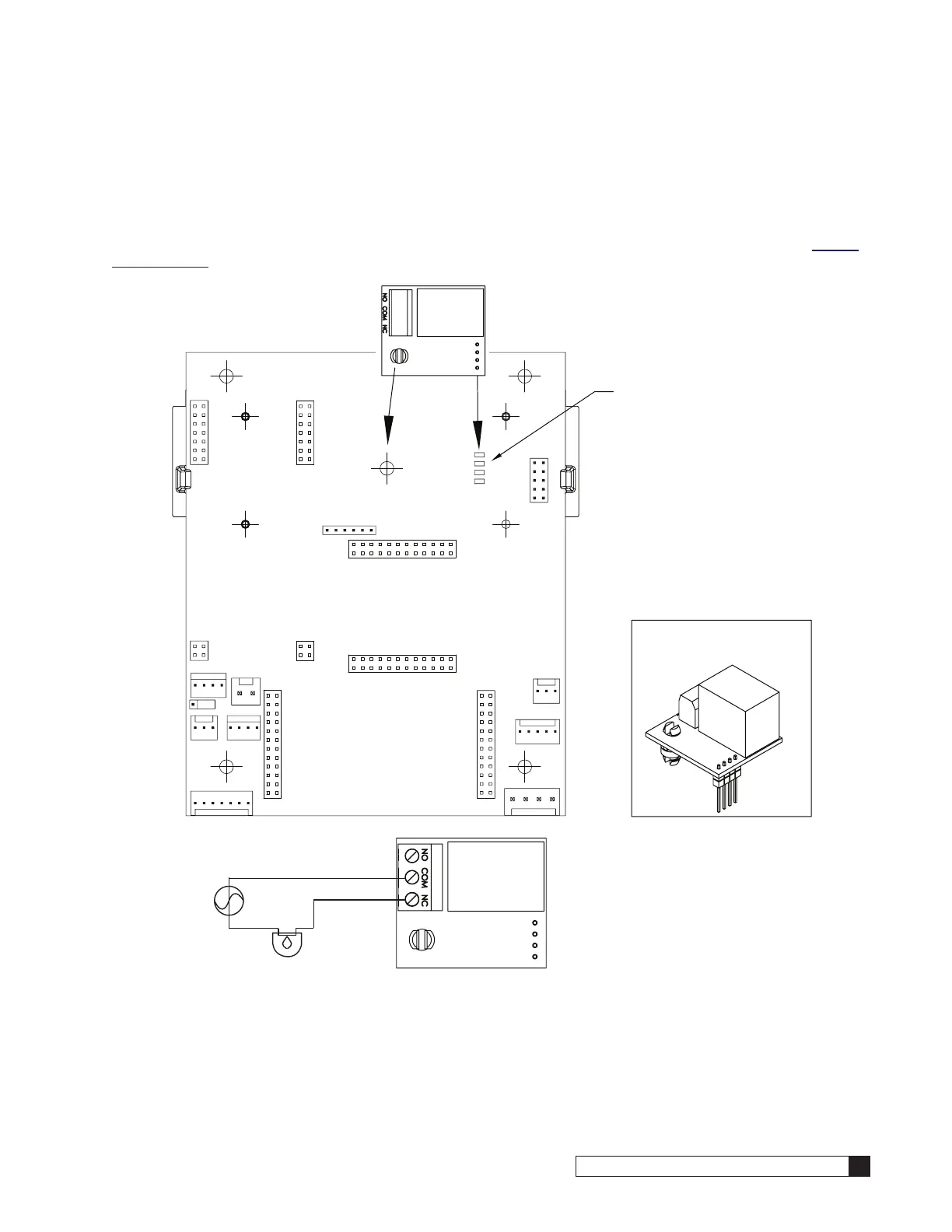
Auxiliary Output 5 Relay Board (P/N 01022238)
The GBE board offers support for the Auxiliary Output 5 Relay board (P/N 01022238). To use the relay board, install it
onto the back of the GBE board.
Refer to GBE Programming for Commercial Softeners and Filters (except for HFxN) Manual (P/N 01027295) for program-
ming information. This manual can be obtained from your local dealer, CPort (www.cport.culligan.com) under the Techni-
cal Service Tab or on the Service Tech App.
PLUG IN
HERE
BOARD
RELAY
BACK OF
GBE BOARD
LAMP or BUZZER
24V
AC SUPPLY
RELAY
In this example, the circuit is wired to the
Common (Com) Terminal and Normally
Closed (NC) Terminal, which means that
when the light is ON an error has occurred,
and when the light is OFF the circuit is
operating normally.
AUXILIARY OUTPUT 5
RELAY BOARD
Figure 42. Example of customer wiring to the GBE Alarm Signal Output.
This mode of operation occurs when the relay board is plugged into the GBE board chlorinator socket. When Error Status
is selected on the display, this relay is energized holding the normally closed contact open, and when the GBE board has
power AND there are no errors present the relay is energized. (“Problem Found” is not showing on the Home screen).
The relay is in the de-energized state when the GBE is either powered OFF or when there is an error present on the GBE
board.
On a multiple-tank softener system, such as a twin-alternating, or progressive flow network, the Alarm Signal Output Re-
lay board must be installed on each Smart Controller that the user wants monitored for errors.

Related product manuals