EasyManua.ls Logo

Culligan CTM 21 - Smart Controller Circuit Board Layout

Culligan CTM 21
81 pages
Print Icon
To Next Page IconTo Next Page
To Next Page IconTo Next Page
To Previous Page IconTo Previous Page
To Previous Page IconTo Previous Page
Loading...
Smart Controller Circuit Board Layout 23
Cat. No. 01029343
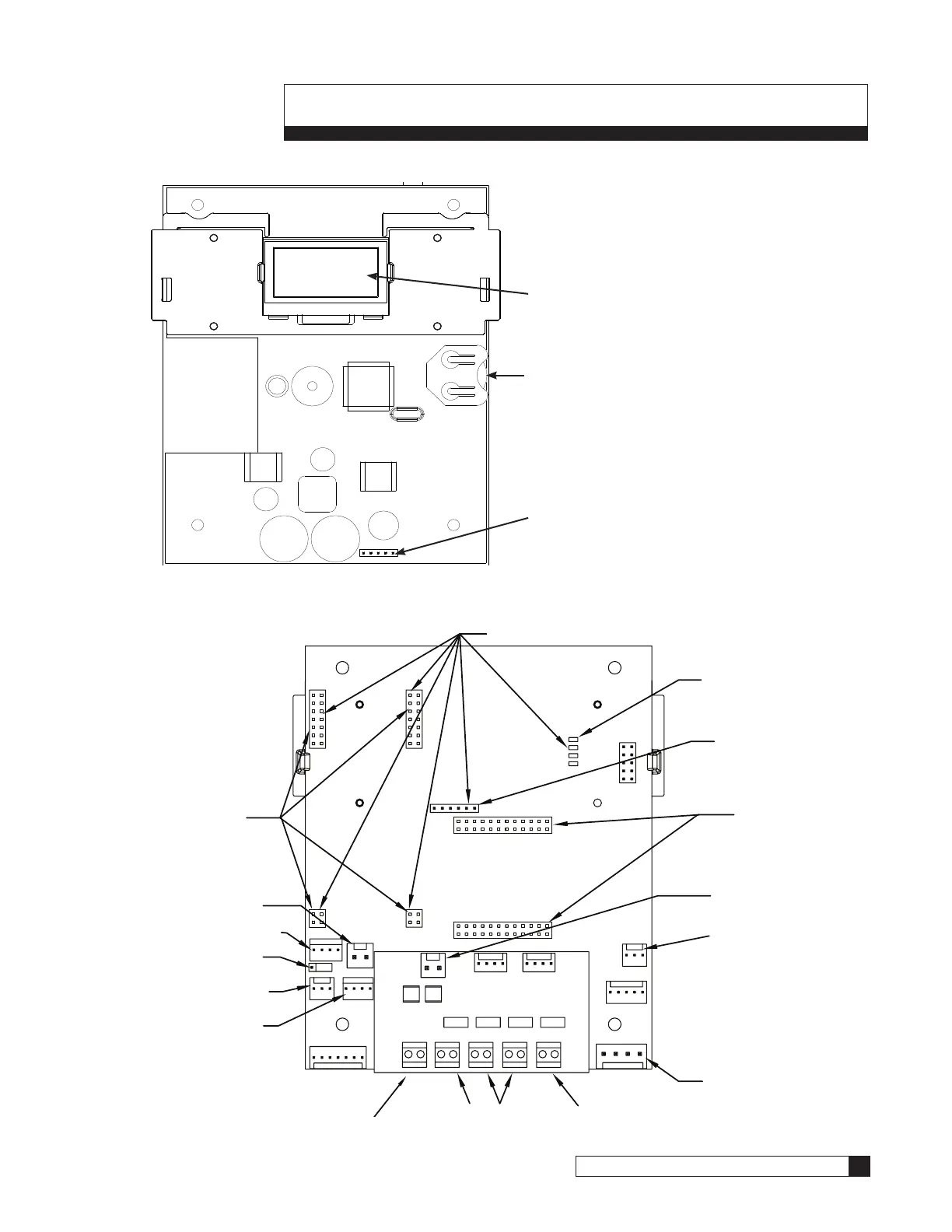
Smart Controller Circuit Board Layout
Smart Controller Circuit Board Layout–Front
Figure 23. Smart Controller circuit board layout, front view.
Smart Controller Circuit Board Layout–Back
POSITION
DC
MOTOR
FLOW
METER
RS485
BRINE
TANK
J22
2.5v
24v
AQUA SENSOR
AUX OUT4
AUX OUT3
AUX OUT2
AUX OUT1AUX INPUT
Figure 24. Smart Controller circuit board layout, rear view.
Keypad connector
Battery
CR2032 (Positive Side Up)
Pull protective tab before activating
power to activate the battery
OLED Display
Programmable
Outputs (Optional)
Auxiliary Input
Flow Meter Cable
(Not available for
Timeclock models)
Optional Landline
Modem Connections
Pilot Motor Connection
Pilot Motor Position Cable
Multiple Unit Jumper
Communication Cable
(Multi-Tank Only)
Optional Cell Modem Connections
Power Cable
(from transformer)
External 24VAC Blocking
Valve Output (Optional)
AUX 6
Motorized Ball Valve
Connection
(Multi-Tank Only)
RF Board Connection
(for remote)
Data Port PLC Output
Optional AUX 5 Relay
Board Connection

Related product manuals