EasyManua.ls Logo

Da-Lite UTB Contour - Installation of Screens Under 104 Viewing Width; Install Wall Brackets; Mount Screen to Wall

Da-Lite UTB Contour
8 pages
Print Icon
To Next Page IconTo Next Page
To Next Page IconTo Next Page
To Previous Page IconTo Previous Page
To Previous Page IconTo Previous Page
Loading...
6
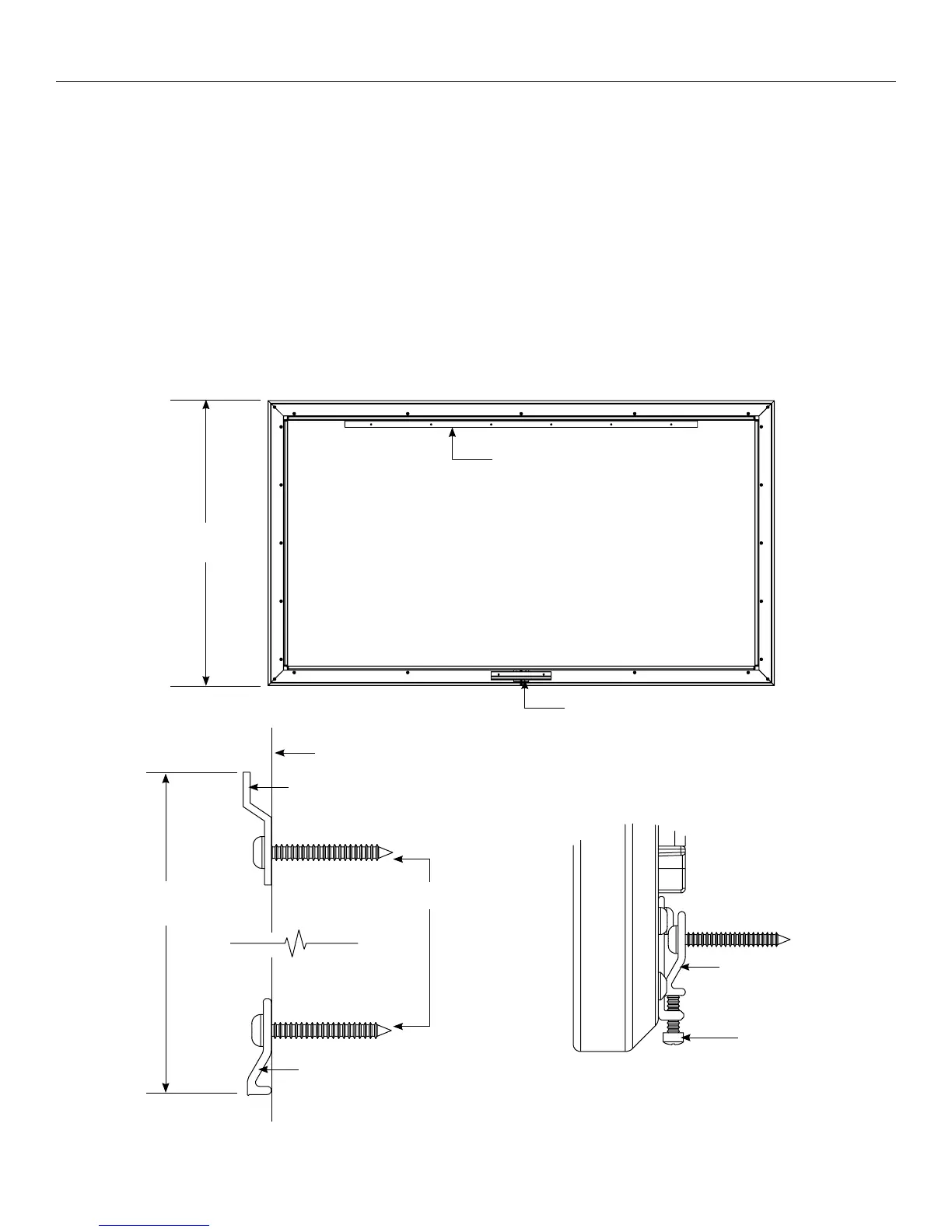
1. Secure the large top wall bracket to wall studs at the desired
height. Make sure the bracket is level. The top of the screen will
be 2¼" above the top of the edge of this wall bracket when
mounted. You will need at least a 3" clearance above the bracket
to hang the screen (Figure 8).
2. To install the small bottom wall bracket, you must measure the
overall height of the screen and subtract 3". Find the center point
of the top wall bracket. Using your screen height minus 3”,
measure down from the top edge of the top wall bracket and
mark the wall. This will be the center point of the bottom edge of
the bottom wall bracket. Level the bottom wall bracket and mark
the wall for the two screw holes in this bracket (Figure 8).
Installation of Screens Under 104" in Viewing Width
Figure 8 — Screens Under 104" in Viewing Width
Fillister Screw
Large Wall Bracket
Large Wall Bracket
Wall
Small Bottom
Wall Bracket
Small Bottom
Wall Bracket
Small Bottom
Wall Bracket
Screws Not Provided
Overall Height
of Screen Less 3"
Overall Height
of Screen
3. Attach the bottom wall bracket to the wall.
4. Lift the screen at least 3" over the top wall bracket. Lower the
screen until the frame hooks onto the top wall bracket.
5. To secure your screen against wall, locate the illister screw in the
bottom frame bracket. Tighten the screw until it touches the
bottom wall bracket, then rotate two more turns (Figure 8).
Note: This screw can be rotated up to three more turns if
stretching of viewing surface is needed.

Related product manuals