EasyManua.ls Logo

DAB 2 JET SET - Page 32

DAB 2 JET SET
Print Icon
To Next Page IconTo Next Page
To Next Page IconTo Next Page
To Previous Page IconTo Previous Page
To Previous Page IconTo Previous Page
Loading...
DEUTSCH
30
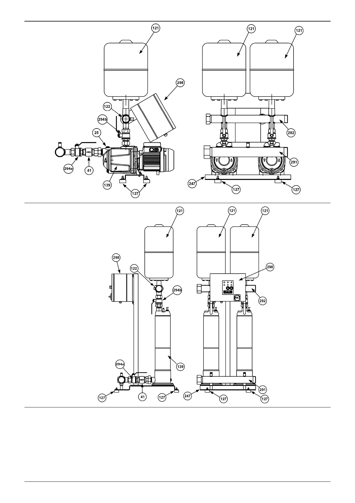
25 - Fülldeckel Elektropumpe 139 - Elektropumpe 298 - Schalttafel
41 - Rückschlagventil 247 - Untergestell
121 - Ausdehnungsgefäß 291 - Ansaugsammelrohr
122 - Druckgeber 292 - Auslaßsammelrohr
127 - Schwingungsdämpferfuß 294a/294b - Sperrventil
GRUPPE 2 EURO
GRUPPE 2 PULSAR DRY

Table of Contents

Related product manuals