EasyManua.ls Logo

Dacor ECPS - Upper Oven Self Clean Cycle

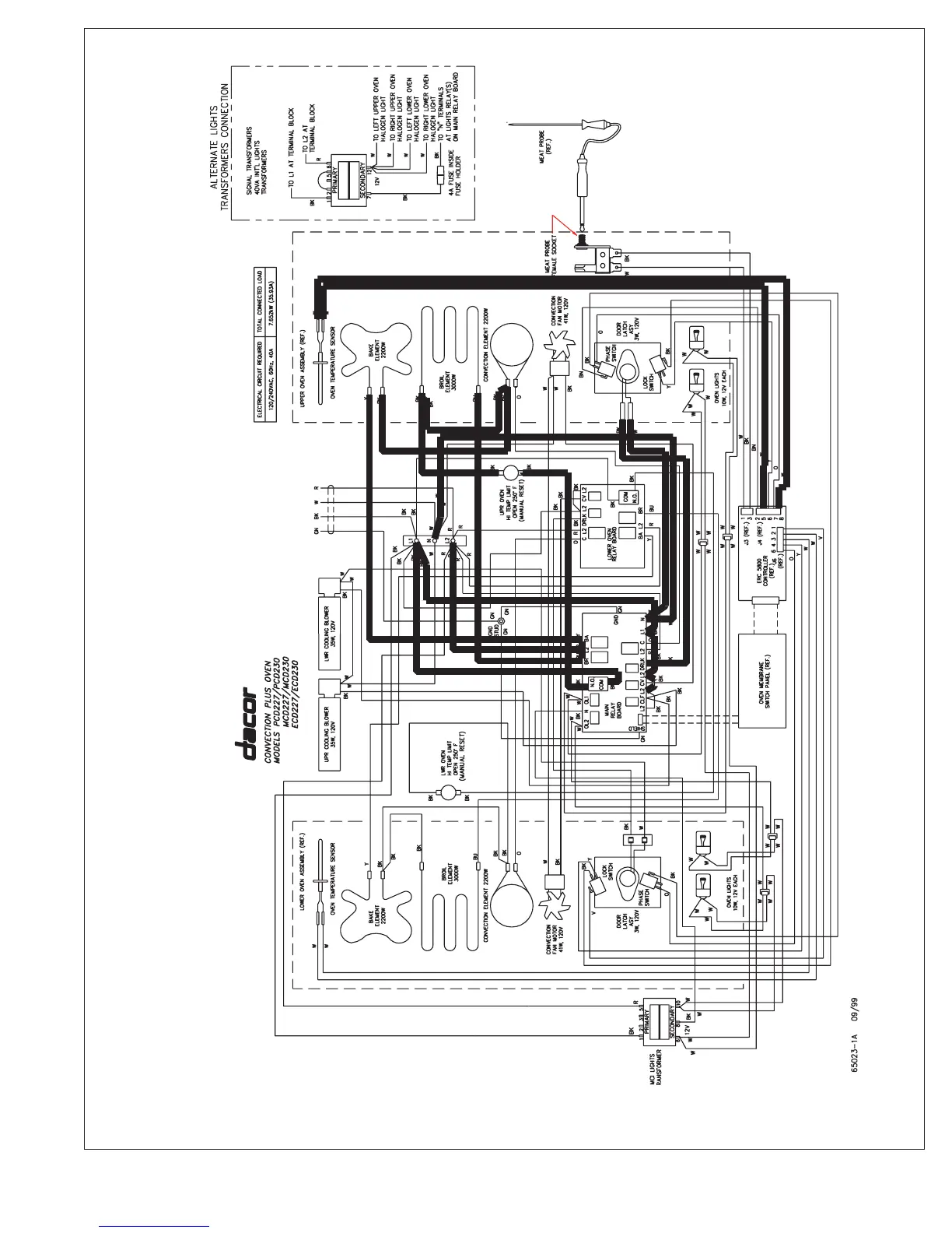
Dacor ECPS
159 pages
Print Icon
To Next Page IconTo Next Page
To Next Page IconTo Next Page
To Previous Page IconTo Previous Page
To Previous Page IconTo Previous Page
Loading...
Technical Manual - Page 111
Upper Oven
Self Clean Cycle

Table of Contents

Related product manuals