EasyManua.ls Logo

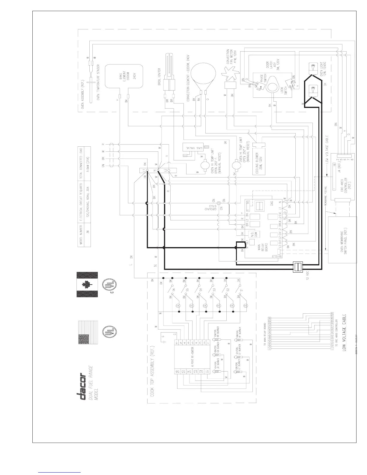
Dacor ECPS - ERD36 Light Circuit Diagram

Dacor ECPS
159 pages
Print Icon
To Next Page IconTo Next Page
To Next Page IconTo Next Page
To Previous Page IconTo Previous Page
To Previous Page IconTo Previous Page
Loading...
Technical Manual - Page 69
ERD
ERD36 LIGHT CIRCUIT

Table of Contents

Related product manuals