EasyManua.ls Logo

Dahua Villa Door Station

Dahua Villa Door Station
37 pages
To Next Page IconTo Next Page
To Next Page IconTo Next Page
To Previous Page IconTo Previous Page
To Previous Page IconTo Previous Page
Loading...
Quick Start Guide
8
2 Installation
Preparations
This chapter introduces precautions in installation. For detailed steps, see the corresponding
installation guide.
Do not expose the VTO to condensation, high temperature, direct sunlight, stain, dust, and
chemically corrosive substances.
Installation should be done by professional teams. Do not dismantle or repair the VTO by
yourself in case of device failure. Contact after-sales service if you need any help.
Prepare cross screwdrivers and gloves yourself.
Installation Guide
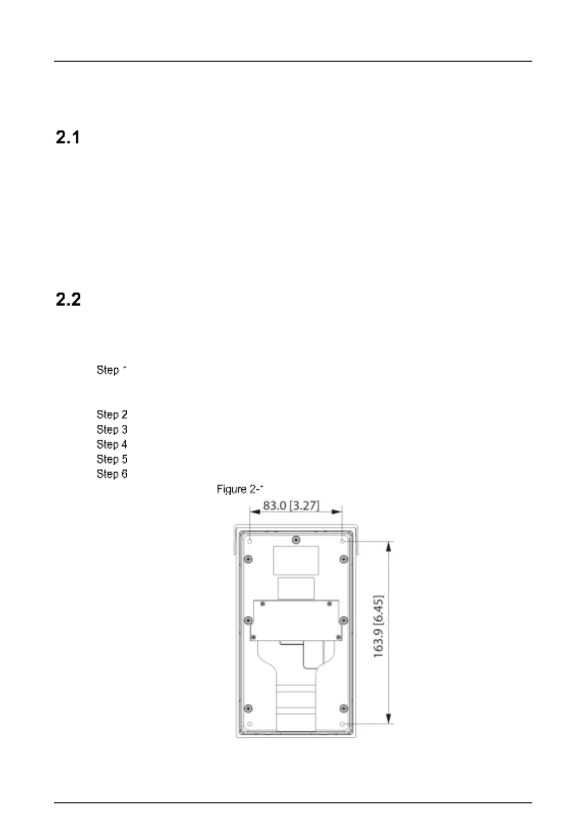
2.2.1 Villa Door Station (multiple buttons)
Open the port cover of the VTO, drill screw holes on the wall according to the dimension
of the mounting hole on the rear panel of the VTO, and put the expansion bolts into the
holes.
Complete the cable wiring.
Fix the port cover to the rear panel of the VTO with four screws.
Fix the bare VTO on the wall with four screws.
Install the mount box on the VTO from top to the bottom, and then fix it with two screws.
Fix the rain over on the top of the VTO with two screws.
Dimension (mm [inch])

Related product manuals