EasyManua.ls Logo

Daiichi Electronics HSQT2-93A - Outline Dimension; Mounting Instruction; The Example of Combination Mounting Dimension

Default Icon
16 pages
Print Icon
To Next Page IconTo Next Page
To Next Page IconTo Next Page
To Previous Page IconTo Previous Page
To Previous Page IconTo Previous Page
Loading...
Q-208-081
9
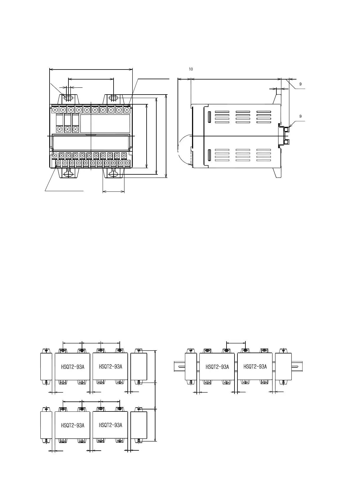
3. Handling explanation
3.1 Outline dimension
( )
( )
( )
22-M3screw
120
13-M4screw
130
31
R
3
65
6
9
2
1
1
0
1
2
0
19
7
(12.5)
Note(
) In case of DIN rail (height 15mm) installation. (Please use DIN standard 35mm rail.)
(
10
) The dimensions which the switch cover is opening.
3.2 Mounting instruction
The environmental conditions of installation space. Please select indoors without low mechanical vibration, dust,
and corrosive gas.
There is no limit of a mounting position.
A mounting instruction can select 35mm width DIN rail mounting and screw mounting. In screw mounting, please install
with M4 screw or M5 screw. (However, the screw is not attached. The tightening torque of a screw, M4:1.0~1.3
N・m,M5:2.0~2.5N・m)
Please detach an interval lining up side-by-side above 10mm in consideration of radiation.
A vertical interval should prepare space 90mm or more in consideration of radiation and a wiring space.
Please secure the space distance of a terminal and a metal panel 10mm or more.
3.3 The example of combination mounting dimension (Unit mm)
■ Screw installation ■ Rail installation
1
1
0
9
0
65 65
10
10
10
65
10
10
10
1
1
0
65
65
65
10
10
10
35mm width rail (strong type).
《Recommendation product》 Fuji electric Co., Ltd. TH35-15AL
Please use rail of IEC, DIN technical standard
65

Related product manuals