EasyManua.ls Logo

Daikin AGZ080E - Page 23

Daikin AGZ080E
112 pages
Print Icon
To Next Page IconTo Next Page
To Next Page IconTo Next Page
To Previous Page IconTo Previous Page
To Previous Page IconTo Previous Page
Loading...
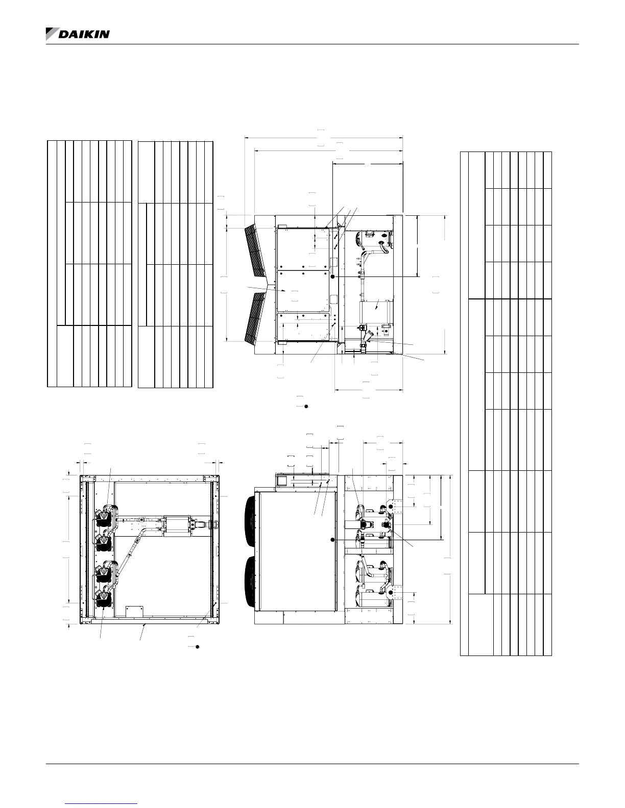
dImensIons and WeIghTs - paCkaged UnITs
www.DaikinApplied.com 21 IOM 1206-7 • TRAILBLAZER
MODEL AGZ CHILLERS
Figure 32: AGZ040E - AGZ070E
1822
71.8
208
8.2
REF.
2389
94.0
2546
100.2
165
6.5
370
14.6
2X
64
2.5
497
19.6
1094
43.1
22
.875
KNOCKOUTS
FIELD CONTROL
CONNECTIONS
QTY. 3
2235
88.0
DIMENSION DOES NOT INCLUDE
LIFTING BRACKETS
B
153
6.0
A
X
Y
CONTROL
BOX
FRONT LEFT
CORNER POST
PURPOSELY
HIDDEN
EVAP.
WYE-STRAINER
REQUIRED
(FACTORY OR FIELD
INSTALLED OPTION)
[22]
Ø.875
POWER ENTRY
KNOCKOUTS
FRONT OR
RIGHT SIDE
635
25.0
266
10.5
797
31.4
506
19.9
2396
94.3
506
19.9
51
2.0
80
3.2
152
6.0
127
5.0
Z
[22]
Ø.875 KNOCKOUTS
POWER ENTRY KNOCKOUTS
ARE ON THE OPPOSITE
SIDE OF CONTROL BOX
EVAP.
WATER
INLET
EVAP.
WATER
OUTLET
L1
L2
L3
L4
L1 - L4,
LIFTING
LOCATIONS
337
13.3
1721
67.8
337
13.3
52
2.0
52
2.0
19
.750
QTY. 4
M1 - M4, ISOLATOR MOUNTING HOLE LOCATIONS ON BOTTOM SURFACE OF UNIT BASE
M3 M1
M2M4
L4 L2
L1L3
COMPRESSORS
CIRCUIT #2
COMPRESSORS
CIRCUIT #1
TOP VIEW WITH
COILS AND
FANS REMOVED
X Y Z
AGZ040E 39.8 (1011) 45.9 (1166) 38.4 (975)
AGZ045E 38.9 (988) 44.5 (1130) 41.2 (1047)
AGZ050E 39.1 (993) 44.9 (1141) 41.2 (1047)
AGZ055E 39.1 (993) 44.8 (1138) 41.2 (1047)
AGZ060E 39.2 (996) 44.6 (1133) 41.1 (1044)
AGZ065E 39.2 (996) 44.6 (1133) 41.1 (1044)
AGZ070E 36.8 (935) 41.8 (1062) 42.6 (1082)
PACKAGE UNITS WITH MICROCHANNEL COILS
UNIT MODEL
CG LOCATION, IN (MM)
SHIPPING WEIGHT
OPERATING
WEIGHT
LBS (KG) LBS (KG) L1 L2 L3 L4 M1 M2 M3 M4
AGZ040E
2948 (1337) 2964 (1345) 1067 (484) 881 (400) 548 (249) 453 (206) 1022 (464) 844 (383) 601 (273) 496 (225)
AGZ045E
3094 (1403) 3112 (1412) 1051 (477) 832 (377) 676 (307) 535 (243) 1021 (463) 809 (367) 715 (324) 567 (257)
AGZ050E
3093 (1403) 3114 (1413) 1049 (476) 837 (380) 671 (304) 536 (243) 1020 (463) 814 (369) 712 (323) 568 (258)
AGZ055E
3106 (1409) 3128 (1419) 1052 (477) 840 (381) 675 (306) 539 (245) 1023 (464) 817 (371) 716 (325) 572 (260)
AGZ060E
3130 (1420) 3155 (1431) 1059 (480) 851 (386) 676 (307) 543 (246) 1031 (468) 828 (376) 718 (326) 577 (262)
AGZ065E
3130 (1420) 3155 (1431) 1059 (480) 851 (386) 676 (307) 543 (246) 1031 (468) 828 (376) 718 (326) 577 (262)
AGZ070E
3472 (1575) 3497 (1586) 1180 (535) 847 (384) 842 (382) 604 (274) 1157 (525) 830 (377) 880 (399) 631 (286)
PACKAGE UNITS WITH MICROCHANNEL COILS
UNIT MODEL
LIFTING (SHIPPING) WEIGHT BY CORNER LBS (KG) MOUNTING (OPERATING) WEIGHT LBS (KG)
A B
AGZ040E 22.8 (579) 1.5 (38) 2.5 (64)
AGZ045E 21.4 (544) 0.11 (3) 2.5 (64)
AGZ050E 20 (508) 2.7 (69) 2.5 (64)
AGZ055E 19.3 (490) 2.0 (51) 2.5 (64)
AGZ060E 17.6 (447) 0.3 (8) 2.5 (64)
AGZ065E 17.6 (447) 0.3 (8) 2.5 (64)
AGZ070E 17.6 (447) 0.3 (8) 2.5 (64)
UNIT MODEL
EVAP. DIMENSIONS IN (MM) CONNECTION SIZE
(VICTAULIC)
0B
334547101
AGZ-E, 4 FANS
NOTE: LIFTING
WEIGHTS ARE BASED ON UNIT SHIPPING WEIGHTS.
MOUNTING WEIGHTS ARE BASED ON UNIT OPERATING WEIGHT WITH EVAPORATOR WATER INCLUDED.
SHIPPING AND OPERATING WEIGHTS DO NOT INCLUDE THE WEIGHTS OF ANY OPTIONS OR ACCESSORIES.

Related product manuals