EasyManua.ls Logo

Daikin FTX50HVEC - Service Diagnosis

Daikin FTX50HVEC
410 pages
Print Icon
To Next Page IconTo Next Page
To Next Page IconTo Next Page
To Previous Page IconTo Previous Page
To Previous Page IconTo Previous Page
Loading...
Troubleshooting - Outdoor Unit Related Si18-201
302 Service Diagnosis
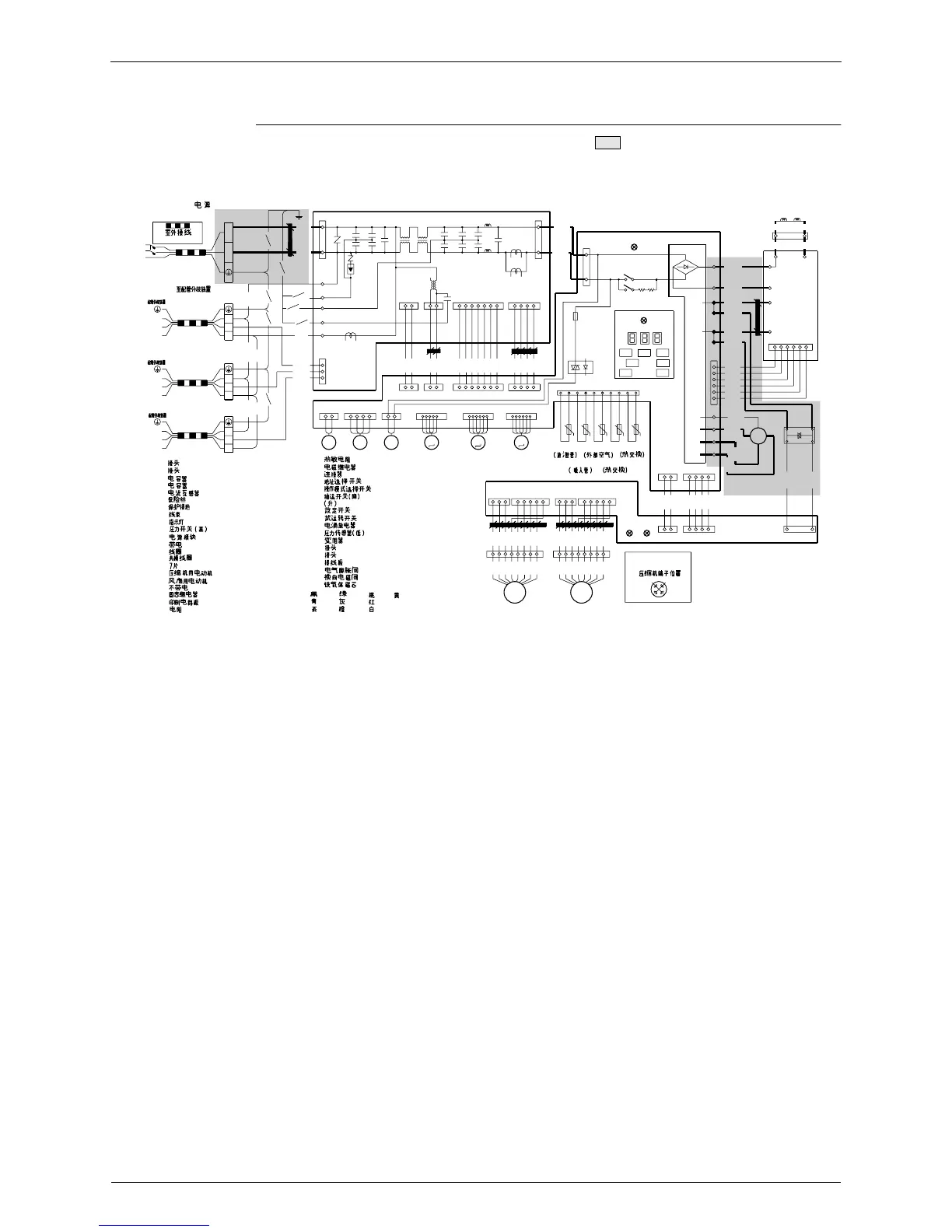
3.4.5 Internal Wiring Check (1)
Check No.5 Check the wiring at the sections marked by the boxes in the diagram.
Check for breaking of wire and wiring errors.
In the case of RMX140JVMC
ACN : CONNECTOR
ACP : CONNECTOR
C1R : CAPACITOR
C900~C927 : CAPACITOR
CT900~CT902: CURRENT TRANSFORMER
F1U : FUSE
FG1~FG3 : PROTECTIVE EARTH
H102~H105 : WIRE HARNESS
H1P~H4P : PILOT LAMP
HPS : HIGH PRESSURE SW
PM : POWER MODULE
L : LIVE
L900~L904 : COIL
L1R
,
L2R : REACTOR
LED2~LED4 : 7 SEGMENT
M1C : COMPRESSOR MOTOR
M1F
,
M2F : FAN MOTOR
N : NEUTRAL
OIS15 : SOLID STATE RELAY
PCB1~PCB4 : PRINTED CIRCUIT BOARD
R250
,
R251 : RESISTOR
BP 1
BP 3
POWER SUPPLY
~50Hz 220-240V
~60Hz 220-230V
FIELD WIRING
2
3
1
2
3
1
2
3
1
2
3
1
TOTO BP UNIT
X2M
X3M
X4M
X1M
N
2
3
L
1
1
2
3
1
2
3
RED
RED
RED
BLK
BLK
GRN
GRN
GRN
GRN
YLW
YLW
YLW
YLW
GRN
GRN
Z1C
YLW
GRN
GRN
YLW
WHT
BRN:
BLU:
YLW
BLK:
BRN
BLK
YLW
BLK
RED
YLW
PCB2
S906
ACN
S952
1
GRN:
GRY:
ORG:
S131
ACP
FG2
FG3
FG1
HPS
V900
2
1
3
5
1
3
CT900
1
PNK:
WHT:
RED:
S105
SA900
SP
V901
C925
C923
YLW:
S111
C926
C924
4
1
C900
Y1R
S908
1
1
2
L900
S132
WHT
Z2C
L904
3
1
S907
2
BLK
L903
1
1
S110
Y3E
S107
EV
P
M
C902
C905
WHT
3
3
BLK
5
C915
C916
1
C927
1
1
WHT
C904
C903
S904
S109
S104
BLK
Y2E
EV
L
M
BLK
Z4C
L902
H2P
BLK
L901
C906
PCB3
BLK
6
5
S514
BLK
RED
3
RED
Z3C
7
7
BLK
WHT
1
WHT
CT901
1
CT902
1
1
BLK
BLK
1
S108
EV
G
Y1E
GRY
S903
S103
GRY
M
WHT
YLW
S504
YLW
BLK
BLU
M1F
BLU
S951
BLK
6
ORG
ORG
4
4
BLK
PNK
PNK
2
1
5
Z5C
(
DISCHARGE
)
RED
RED
5
S516
R5T
1
(
SUCTION
)
3
RED
RED
1
WHT
WHT
t˚
R4T
3~
BLK
BLK
0IS15
M
1
1
S151
2
PCB1
F1U
3.15A
GRY
GRY
(
OUTDOOR
)
S506
YLW
YLW
t˚
N
L
R3T
M2F
BLU
BLU
(
LIQUID
)
ORG
ORG
t˚
PNK
PNK
R2T
5
PCB4
(
CONDENSER
)
S114
SW7
SW1
LED2
H3P
t˚
RY84
RY3X
R1T
TERMINALS OF THE COMP.
ASSIGNMENTS OF
SW3
10
R250
H1P
LED3
SW2
t˚
H4P
U
N
R251
LED4
1
SW4
SW6
SW5
1
S101
S501
~
~
V
W
WHT
2
2
BLK
1
PM
1
N-
P+
S502
S102
W
U
N
WHT
V
BLK
H104
H105
H102
H103
S140
6
1
TA 5
TA 6
BLK
W
U
N
4
V
4
BLK
RED
WHT
ORG
ORG
WHT
BRN
BLU
BRN
BLK
BLK
BLK
BLK
BLK
BRN
BLU
MODULE
ACTIVE
WHT
U
Z6C
V
N
3~
M
TB8
M1C
W
WHT
WHT
TB4
TB5
TB2
1
L1R
3D024907B
TB7
1
RED
S517
L2R
C1R
WHT
WHT
TB6
6
3
BLK
R1T~R5T : THERMISTOR
RY3X
,
RY84 : MAGNETIC RELAY
S101~S952 : CONNECTOR
SW1~SW2 : ADDRESS SELLECT SW
SW3 : OPERATION MODE SELLECT SW
SW4 : PUMP DOWN SW
(
DOWN
)
SW5 :
(
UP
)
SW6 : SET SW
SW7 : TEST OPERATION SW
SA900 : SURGE ABSORBER
SP : LOW PRESSURE SENSOR
V900~V901 : VARISTOR
TA 5
,
TA6 : CONNECTOR
TB2~TB8 : CONNECTOR
X1M~X4M : TERMINAL STRIP
Y1E~Y3E : ELECTRONIC EXPANSION VALVE
Y1R : REVERSING SOLENOID VALVE
Z1C~Z6C : FERRITE CORE
+
-
+
-
BP 2
3~
M
(Lower Side) (Upper Side)

Table of Contents

Related product manuals