EasyManua.ls Logo

Daikin FTX50HVEC - Page 389

Daikin FTX50HVEC
410 pages
Print Icon
To Next Page IconTo Next Page
To Next Page IconTo Next Page
To Previous Page IconTo Previous Page
To Previous Page IconTo Previous Page
Loading...
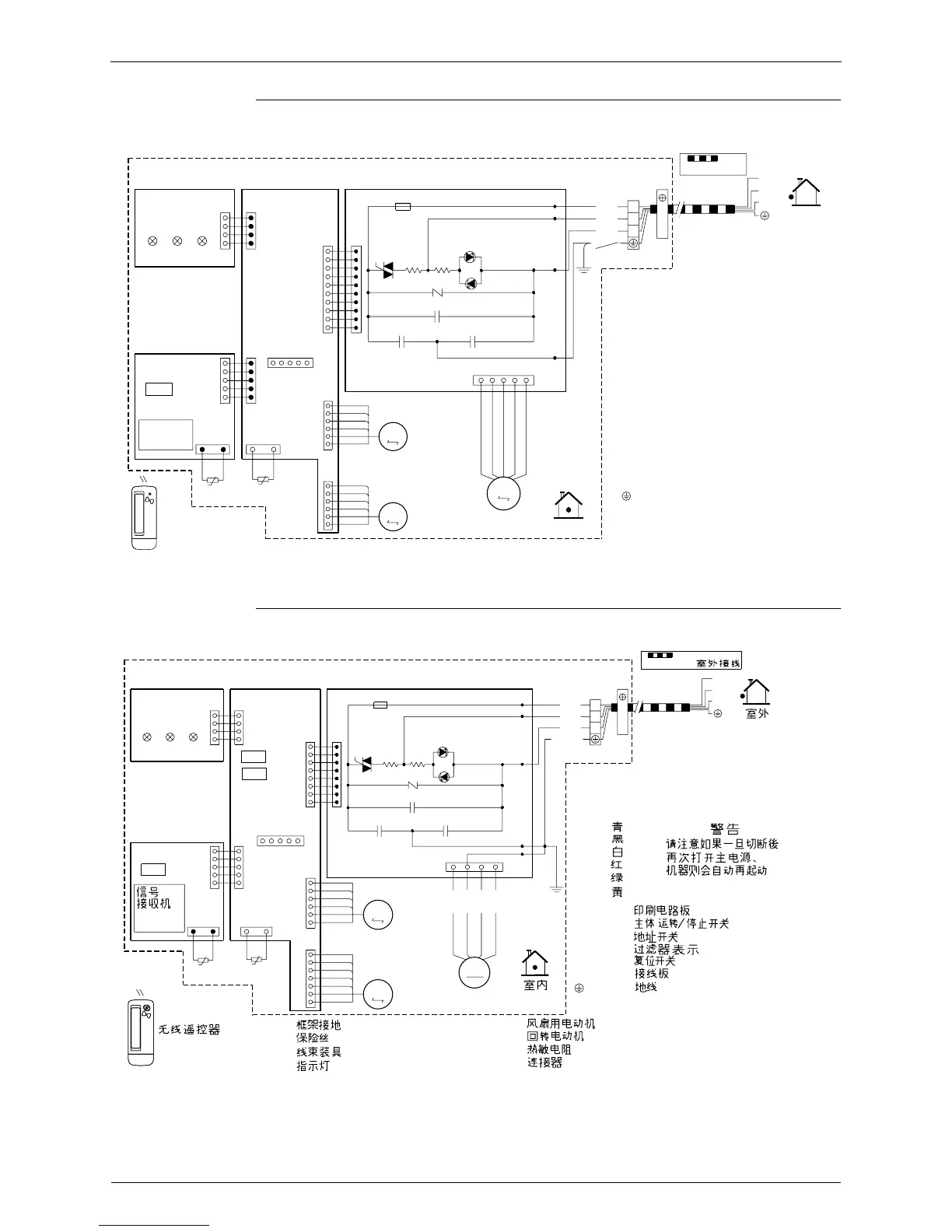
Wiring Diagrams Si18-201
376 Appendix
FTKD50 / 60 / 71JVE (A) (9) , FTKD50 / 60 / 71JVET
FTK50 / 60HVEC
RECEIVER
SIGNAL
LED
H1P
PCB3
PCB4
S1W
CONTROLLER
LED
H2P
WIRELESS
REMOTE
LED
H3P
R1T
S31
t˚
S27
S25
S24
S26
R2T
S32
t˚
S21
HA
PCB1
S37
S8
S6
S36
PCB2
M
3.15A
M
Fu
M2S
M1S
S201
M1F
M
FG
H2
H3
H1
indoor
GRN
WHT
RED
BLK
YLW
FG :FRAME GROUND
Fu :FUSE
H1~H3 :HARNESS
H1P~H3P :PILOT LAMP
M1F :FAN MOTOR
M1S
,
M2S :SWING MOTOR
R1T
,
R2T :THERMISTOR
S1~S201 :CONNECTOR
S1W :OPERATION SWITCH
X1M :TERMINAL STRIP
PCB1~PCB4 :PRINTED CIRCUIT BOARD
:PROTECTIVE EARTH
X1M
2
3
1
NOTE THAT OPERATION WILL
RESTART AUTOMATICALLY IF
THE MAIN POWER SUPPLY IS
TURNED OFF AND THEN BACK
ON AGAIN.
CAUTION
3
2
1
3D025028
outdoor
FIELD WIRING.
RECEIVER
SIGNAL
H1P
LED
PCB3
PCB4
S1W
CONTROLLER
LED
H2P
WIRELESS
REMOTE
LED
H3P
R1T
S31
t˚
S27
S25
S24
S26
H1,H2,H3
H1P,H2P,H3P
FU
FG
S2W
S8W
R2T
S32
t˚
S21
PCB1
HA
S37
S8
S6
:
:
:
:
S36
PCB2
PILOT LAMP
FRAME GROUND
HARNESS
FUSE
3.15A
M
M
Fu
M2S
M1S
S1
RED
M1F
M
BLU
S1~S37
R1T,R2T
M1S,M2S
M1F
YLW
WHT
FG
FG
H2
H1
H3
indoor
:
:
:
:
GRN
WHT
RED
BLK
/
YLW
X1M
S8W
S2W
S1W
PCB1~PCB4
WHT:
GRN:
X1M
YLW:
RED:
BLU:
BLK:
1
3
2
THERMISTOR
SWING MOTOR
CONNECTOR
FAN MOTOR
:
:
:
:
:
:
FIELD WIRING.
RESTART AUTOMATICALLY IF
THE MAIN POWER SUPPLY IS
NOTE THAT OPERATION WILL
TURNED OFF AND THEN BACK
ON AGAIN.
CAUTION
PRINTED CIRCUIT BOARD
PROTECTIVE EARTH
OPERATION SWITCH
TERMINAL STRIP
ADDRESS SWITCH
RESET SWITCH
1
3
2
outdoor
3D012996A
CLEANING INDICATOR

Table of Contents

Related product manuals