EasyManua.ls Logo

Daikin FTX50HVEC - Page 397

Daikin FTX50HVEC
410 pages
Print Icon
To Next Page IconTo Next Page
To Next Page IconTo Next Page
To Previous Page IconTo Previous Page
To Previous Page IconTo Previous Page
Loading...
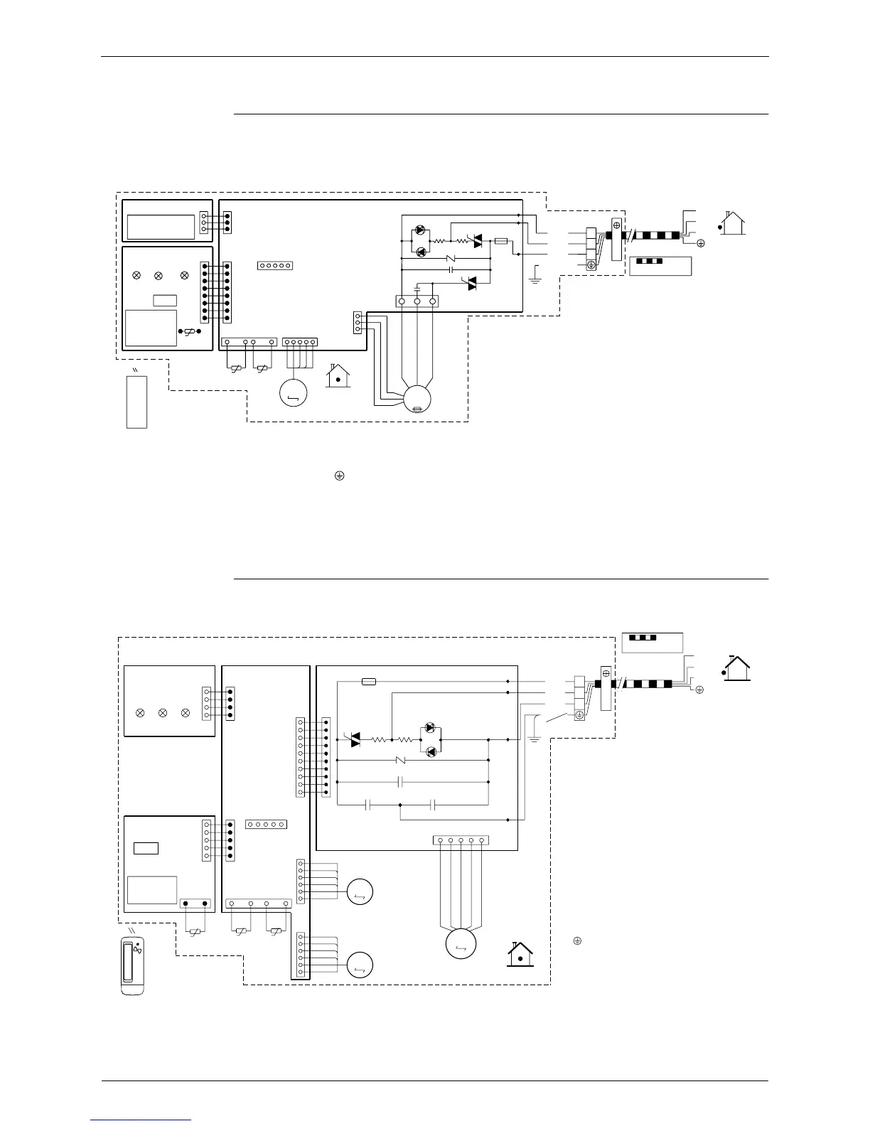
Wiring Diagrams Si18-201
384 Appendix
2.3.2 Heat Pump
FTX25 / 35JVEA9, FTX25 / 35JAVET, FTX25 / 35JAV1NB, FTXD25 / 35KZV1B
FTXD50 / 60 / 71JVEA (9) , FTXD50 / 60 / 71JVET, FTXD50 / 60 / 71JV1B
NOTE
ADDRESS JUMPER IS MARKED
"JA"ON PCB.
ON AGAIN.
TURNED OFF AND THEN BACK
THE MAIN POWER SUPPLY IS
RESTART AUTOMATICALLY IF
NOTE THAT OPERATION WILL
FIELD WIRING.
TERMINAL FOR
CENTRALIZED CONTROL
3D020026E
:
PROTECTIVE EARTH
X1M : TERMINAL STRIP
M1F : FAN MOTOR
S1W : OPERATION SWITCH
(
SW7
)
H1P~H3P : PILOT LAMP
R1T~R3T : THERMISTOR
PCB1~PCB3 : PRINTED CIRCUIT BOARD
M1S : SWING MOTOR
S1~S36 : CONNECTOR
S6
M1S
R3T
3
CAUTION
M
S1
H2P
H3
LED1
S21
RED
3
BLK
)
1
S36
M
(
1~
S1W
2
PCB1
R1T
PCB2
S32
M1F
3.15A
FU
H1
LED2
X1M
S27
tº
WHT
C70
S26
H3P
LED3
INTELLIGENT-
EYE SENSOR
R2T
GRN/YLW
140ºC
WIRELESS
H2
REMOTE
FU : FUSE
2
tº
H1P
outdoor
tº
indoor
C70 : RUNNING CAPACITOR
1
PCB3
CONTROLLER
SIGNAL
RECEIVER
tº
S35
S7
SIGNAL
RECEIVER
H1P
LED
PCB3
PCB4
S1W
CONTROLLER
H2P
LED
WIRELESS
REMOTE
H3P
LED
R1T
S31
t˚
S27
S25
S24
S26
R2T
t˚
S32
S21
HA
PCB1
R3T
t˚
S37
S6
S8
S36
PCB2
3.15A
Fu
M1S
M2S
S201
M1F
FG
H1
H3
H2
indoor
GRN
WHT
RED
BLK
YLW
X1M
FG :FRAME GROUND
Fu :FUSE
H1~H3 :HARNESS
H1P~H3P :PILOT LAMP
M1F :FAN MOTOR
M1S
,
M2S :SWING MOTOR
PCB1~PCB4 :PRINTED CIRCUIT BOARD
R1T~R3T :THERMISTOR
S1~S201 :CONNECTOR
S1W :OPERATION SWITCH
X1M :TERMINAL STRIP
1
3
2
:PROTECTIVE EARTH
ON AGAIN.
THE MAIN POWER SUPPLY IS
NOTE THAT OPERATION WILL
TURNED OFF AND THEN BACK
RESTART AUTOMATICALLY IF
CAUTION
1
3
2
3D025027
outdoor
M
M
M
FIELD WIRING.

Table of Contents

Related product manuals