EasyManua.ls Logo

Daikin LRLEQ5AY1(E) - Wiring Diagram

Daikin LRLEQ5AY1(E)
156 pages
Print Icon
To Next Page IconTo Next Page
To Next Page IconTo Next Page
To Previous Page IconTo Previous Page
To Previous Page IconTo Previous Page
Loading...
SiENBE28-901 Standard Specification
Air Cooled Refrigeration Condensing Unit 15
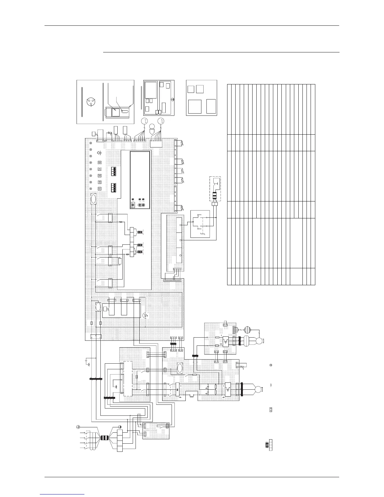
2.4 Wiring Diagram
LRLEQ5A, 6AY1(E)
LRMEQ5A, 6AY1(E)
1. THIS WIRING DIAGRAM IS APPLIED
ONLY TO THE OUTDOOR UNIT.
2. : FIELD WIRING.
3. : TERMINAL STRIP : CONNECTOR : TERMINAL : PROTECTIVE EARTH (SCREW)
4. AT THE TIME OF FACTORY SHIPMENT, SETTING OF "OFF". WHEN OPERATING, SETTING OF "ON" OR "REMOTE".
THE POINT OF CONTACT OF THE INPUT MUST USE THE ONE FOR A SLIGHT CURRENT.
(FOR THE REMOTE SWITCH, USE NON-VOLTAGE CONTACT FOR MICROCURRENT (NOT MORE THAN 1mA DC12V))
5. BE NOTED THAT THE CAPACITY OF CONTACT IS AC220~240V, 0.5A. (TOTAL OF CAUTION OUTPUT, WARNING OUTPUT)
6. BE NOTED THAT THE CAPACITY OF CONTACT IS AC220~240V, 0.5A. (OPERATING OUTPUT)
7. HOW TO USE BS1~5 AND DS1 AND DS2 SWITCH, REFER TO "SERVICE PRECAUTION" LABEL ON EL. COMPO. BOX COVER.
8. WHEN OPERATING, DON'T SHORTCIRCUIT THE PROTECTION DEVICE (S1PH).
9. COLORS BLK: BLACK RED: RED BLU: BLUE WHT: WHITE GRN: GREEN.
10. RY1 POINT CONTACT IS OPEN BEFORE TURNING ON POWER SUPPLY.
REFER TO TECHNICAL GUIDE FOR THE OPERATION TIMING DIAGRAM.
L1 L2 L3 N
L1 L2 L3 N
X1M
RED
WHT
BLK
BLU
A9P
X3A X1A
RY1
X2A
NOTE)10
POWER SUPPLY
Y1: 380-415V 3N~50Hz
Z1C N=1
GRN
C1
A2P
RED
X400A
GRN
WHT
BLU
BLK
Z1F
T2A
N=1
Z10C
N=4
K4M
F400U
K3R
X401A X403A
X402A
BLK
WHT
RED
A3P
X10A X1A
X61A
Z2C
N=1
K2M
V2R
P1
K1R
R95
WHT
L1R
WHT
P2
C66
C63
R50
R59
V1R
X11A
Z3C
N=5
RED
WHT
BLK
UVW
MS
3~
M1C
X28A
X20A
X6A
X4A
Z4C
N=1
PS
N3
P3
BLK
RED
A4P
X5A
X3A
X5A
X41A
X111A
R1T
P1
F1U
N1
R10
X4A
V1R
X2A
5
X2A
5
MS
3~
M1F
RED
WHT
BLK
Z5C
N=1
X1A
X1A
A1P
X1A
RED
BLU
BLK
F1U
F2U
Q1RP
P<
S1PH
X2A
X3A
X4A
V1CP
X7A X9A X10A X14A
K3R
K5R
K6R
K10R
Y3S
F4U
F3U
CC1W1
P1 P2
X2M
CAUTION
OUTPUT
NOTE)5
WARNING
OUTPUT
NOTE)5
OPERATING
OUTPUT
NOTE)6
X66A
A5P
X1M
A
BC
S1S
X1A
REMOTE
OFF
ON
4
3
2
1
X3M
1
2
NOTE)4
SWITCH
R31T
R2T R3T R5T R6T
X29A
X30A
PS
H1P H2P H3P H4P H5P H6P H7P H8P
BS1 BS2 BS3 BS4 BS5 HAP
DS1
ON
OFF
1234
DS2
ON
OFF
1234
IS CONNECTOR COLOR FOR PRINTED
CIRCUIT BOARD.
IS CONNECTOR COLOR FOR COMPONENT.
IS DISCRIMINATION COLOR FOR
COMPONENT LEAD WIER.
X36A
X18A
X31A
X32A
X21A
BLK
X22A
P<
S4PH
R1T
S1NPL
S1NPH
5
Y1E
M
WHT BLK
5
Y2E
M
TERMINAL OF M1C
U
V
W
LAYOUT OF M1C, M1F
CONTROL, BOX
M1C
M1F
OUTER SHELL
CONTROL, BOX
A1P
S1S
X2M
A9P
X1A
X2A
X1M
A5P
X3M
(FRONT)
A3P
A2P
L1R
A4P
(BACK)
NOTES)
A1P PRINTED CIRCUIT BOARD (MAIN) K3R MAGNETIC RELAY (CAUTION OUTPUT) S1NPL PRESSURE SENSOR (LOW)
A2P PRINTED CIRCUIT BOARD (NOISE FILTER) K5R MAGNETIC RELAY (Y3S) S1PH PRESSURE SWITCH (HIGH)
A3P PRINTED CIRCUIT BOARD (INV) K6R MAGNETIC RELAY (WARNING OUTPUT) S1S OPERATION SWITCH (REMOTE / OFF / ON)
A4P PRINTED CIRCUIT BOARD (FAN) K10R MAGNETIC RELAY (OPERATING OUTPUT) S4PH PRESSURE SWITCH (HIGH)
A5P PRINTED CIRCUIT BOARD (ABC I / P) L1R REACTOR (A3P) T2A CURRENT SENSOR (A9P)
A9P
PRINTED CIRCUIT BOARD (EARTH LEAKAGE DETECTOR)
M1C MOTOR (COMPRESSOR) V1CP SAFETY DEVICES INPUT
BS1~5
PUSH BUTTON SWITCH
(MODE, SET, RETURN, TEST, RESET)
M1F MOTOR (FAN) V1R POWER MODULE (A3P, A4P)
PS
SWITCHING POWER SUPPLY (A1P, A3P)
V2R DIODE BRIDGE (A3P)
C1 CAPACITOR Q1RP PHASE REVERSAL DETECT CIRCUIT X1A, X2A CONNECTOR (M1F)
C63, C66 CAPACITOR (A3P) R10 RESISTOR (CURRENT SENSOR) (A4P) X1M TERMINAL STRIP (POWER SUPPLY)
DS1, DS2 DIP SWITCH (A1P) R50, R59 RESISTOR (A3P) X1M TERMINAL STRIP (OPERATION) (A5P)
F1U FUSE (8A, DC650V) (A4P) R95 RESISTOR (CURRENT LIMITING) X2M TERMINAL STRIP
F1U, F2U FUSE (T, 3.15A, 250V) (A1P) R1T THERMISTOR (AIR) (A1P) X3M TERMINAL STRIP (REMOTE SWITCH)
F3U, F4U FUSE (T, 1.0A, 250V) R1T THERMISTOR (FIN) (A3P) Y1E ELECTRONIC EXPANSION VALVE (MAIN)
F400U FUSE (T, 6.3A, 250V) (A2P) R2T THERMISTOR (SUCTION) Y2E ELECTRONIC EXPANSION VALVE (GAS)
H1P~8P
PILOTLAMP (SERVICE MONITOR-ORANGE)
[H2P] MALFUNCTION DETECTION --- LIGHT UP
R31T THERMISTOR (M1C DISCHARGE) Y3S SOLENOID VALVE (4 WAY VALVE)
R3T THERMISTOR (HEAT EXC, DEICER)
Z1C~5C, Z10C
NOISE FILTER (FERRITE CORE)
R5T
THERMISTOR (HEAT EX, OF SUBCOOL OUTLET)
Z1F
NOISE FILTER (WITH SURGE ABSORBER) (A2P)
HAP PILOTLAMP (SERVICE MONITOR-GREEN) R6T
THERMISTOR (HEAT EX, OF SUBCOOL INLET)
K1R, K3R MAGNETIC RELAY RY1 MAGNETIC RELAY (A9P)
K2M, K4M MAGNETIC CONTACTOR (M1C) S1NPH PRESSURE SENSOR (HIGH)
3D059917C

Related product manuals