EasyManua.ls Logo

Daikin REYQ96 - BS Unit

Daikin REYQ96
273 pages
To Next Page IconTo Next Page
To Next Page IconTo Next Page
To Previous Page IconTo Previous Page
To Previous Page IconTo Previous Page
Loading...
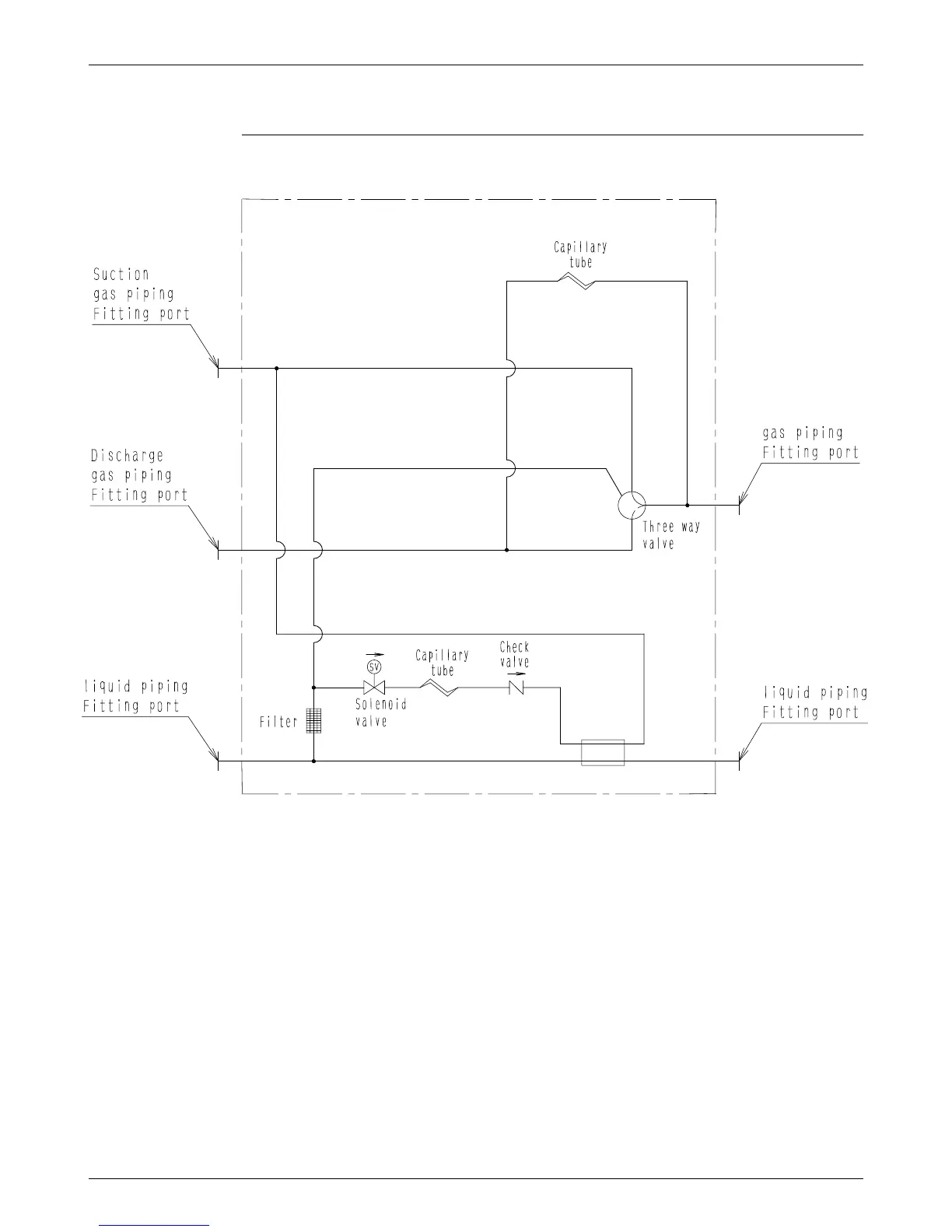
SiUS39-602 Piping Diagrams
Appendix 221
1.3 BS Unit
BSVQ36MVJU
BSVQ60MVJU
4D045338

Table of Contents

Related product manuals