EasyManua.ls Logo

Daikin Skyline - Page 5

Daikin Skyline
10 pages
Print Icon
To Next Page IconTo Next Page
To Next Page IconTo Next Page
To Previous Page IconTo Previous Page
To Previous Page IconTo Previous Page
Loading...
General DesCripTion
www.DaikinApplied.com 5 IM 770-1 • SKYLINE ROOF CURB
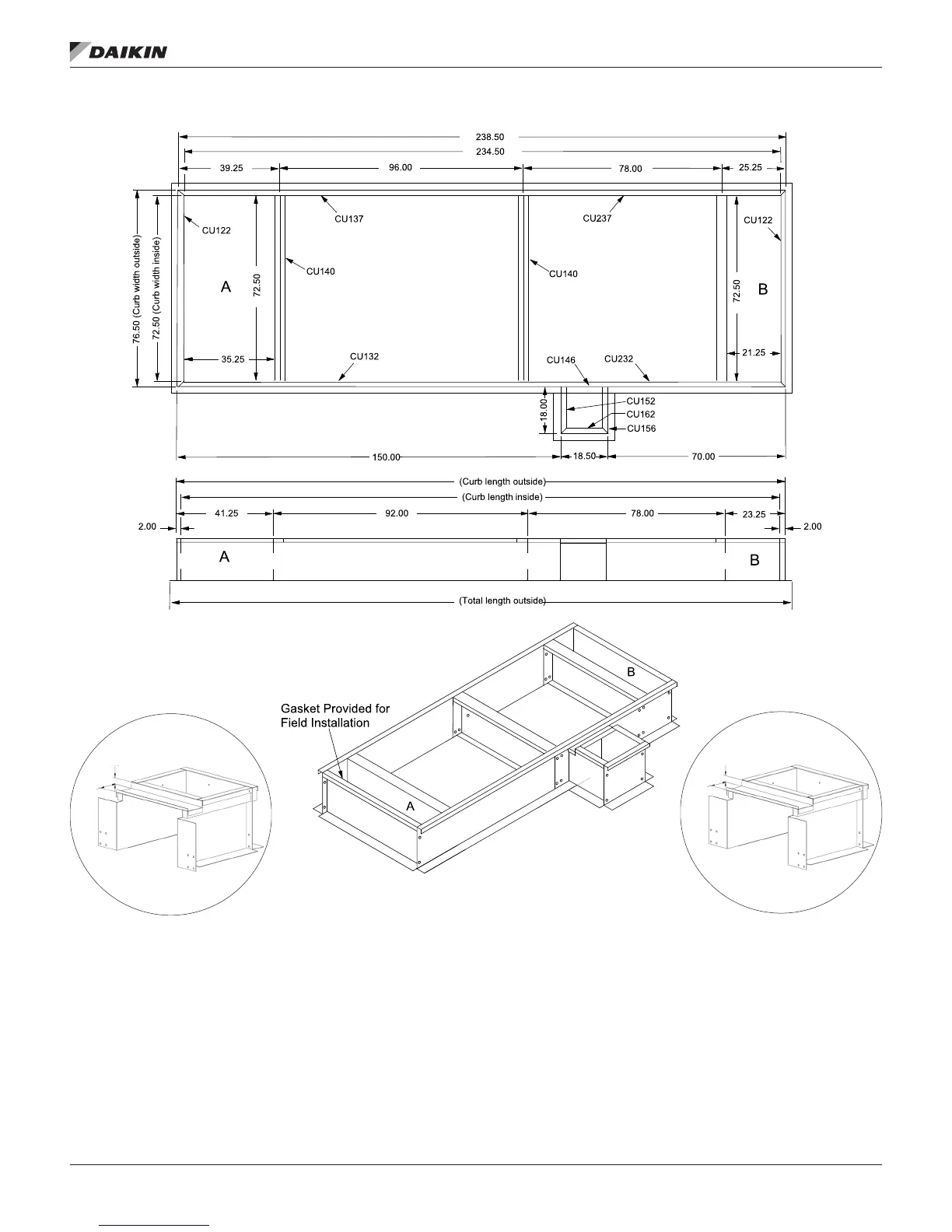
Figure 3: Roof Curb Features
Figure 3 illustrates the features of the roof curb. Intermediate
support channels are provided for support of the supply
and return air ducts. If the curbing is eld supplied, the duct
supports can be provided in accordance with the installation
requirements.
Intermediate supports are provided in the curb assembly
at all points where the curb rails require two sections to be
joined. For eld provided roof curbs, it is recommended that
intermediate supports be incorporated as appropriate for lateral
rigidity of the roof curbs.
Intermediate supports are also provided on roof curbs that are
over 107 inches wide. These supports are required at all points
where the roof curb sides are joined. Support is also required
at the entering and leaving edges of cooling coil sections and
fan sections. These intermediate supports are required on all
wide unit curbs to provide support to the unit across the open
span of the curb.
5.1ʺ
1.66ʺ
3.1ʺ
1.66ʺ
Unitized Base Vestibule Assembly
Curb-ready Base
Vestibule Assembly

Related product manuals