EasyManua.ls Logo

Daikin Super Multi NX B series - Removal of Shunt

Daikin Super Multi NX B series
302 pages
Print Icon
To Next Page IconTo Next Page
To Next Page IconTo Next Page
To Previous Page IconTo Previous Page
To Previous Page IconTo Previous Page
Loading...
Si12-308 Outdoor Unit (80 / 90 Class)
Removal Procedure 237
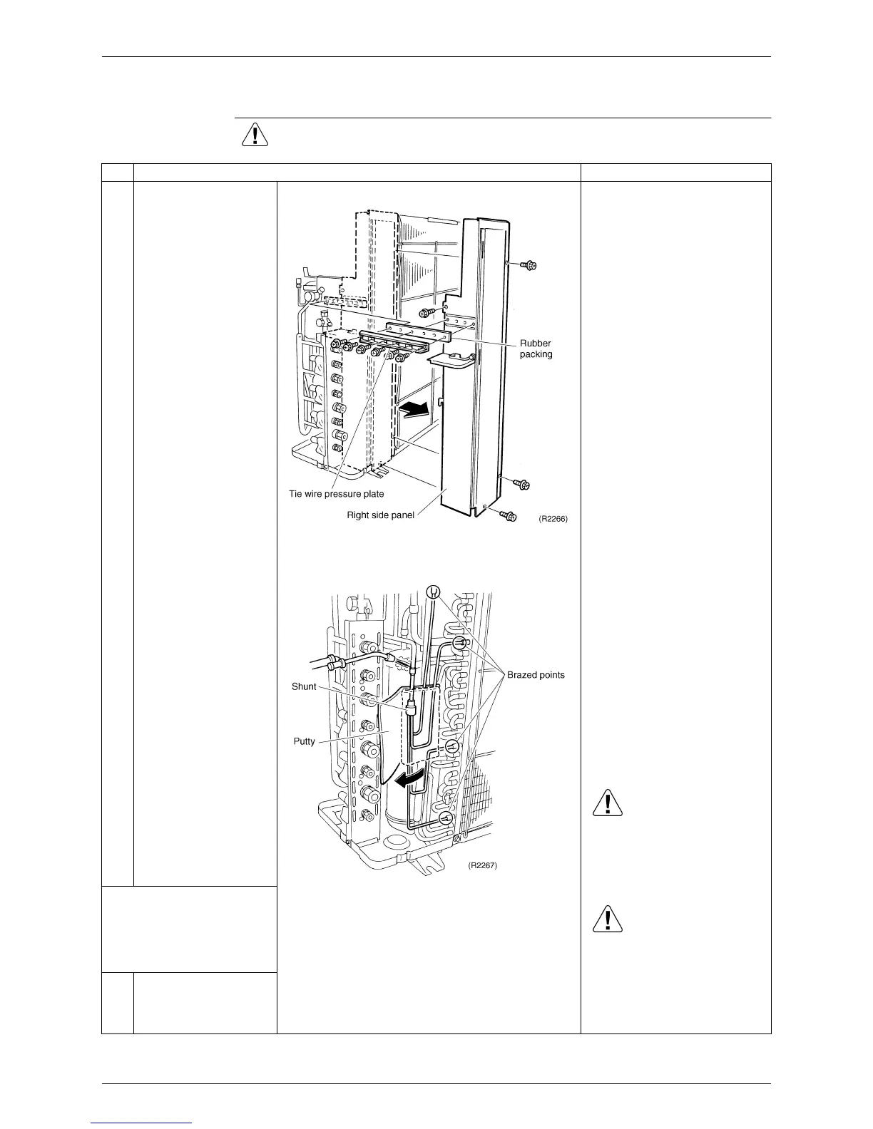
1.8 Removal of Shunt
Procedure Warning Be sure to wait 10 minutes or more after turning off all power supplies
before disassembling work.
Step
Procedure Points
1
2
Remove 6 screws of
the tie wire presser
plate.
Remove 4 screws of
the right side panel.
Fasten the rubber packing
with double-faced adhesive
tape when mounting.
3
Remove the putty.
Caution
Be careful not to get yourself
burnt with the pipes and other
parts that are heated by the gas
welding rod.
Warning
If refrigerant gas leaks during
the job, ventilate the room.
(Bear in mind that if the
refrigerant gas is exposed to
open flames, noxious gas may
be generated.)
Before taking this
procedure, make sure
there is no refrigerant gas
left in the refrigerant
pipes.
4
Disconnect the 5
brazed points of the
shunt.

Table of Contents

Related product manuals