EasyManua.ls Logo

Daikin Super Multi NX B series

Daikin Super Multi NX B series
302 pages
To Next Page IconTo Next Page
To Next Page IconTo Next Page
To Previous Page IconTo Previous Page
To Previous Page IconTo Previous Page
Loading...
Si12-308 Wiring Diagrams
Appendix 279
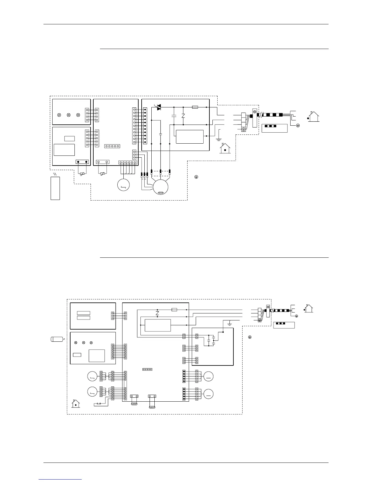
2.1.3 Floor / Ceiling Suspended Dual Type
FLK(X)25 / 35 / 50 / 60AVMA, FLK(X)S25 / 35 / 50 / 60BVMB
2.1.4 Floor Standing Type
FVK(X)S25 / 35 / 50BVMB
RECEIVER
SIGNAL
LED
H1P
CONTROLLER
WIRELESS
PCB3
LED
H2P
REMOTE
PCB4
S1W
LED
H3P
R1T
S31
t˚
S27
S25
S24
S26
S32
R2T
t˚
PCB1
S21
HA
M
S6
M1S
S37
S7
X21A
S36
H4
100
1~
M
t˚
H5
C70
˚C
M1F
H6
X11A
PCB2
TRANSMISSION
CIRCUIT
H1P~H3P : PILOT LAMP
M1F : FAN MOTOR
FU : FUSE
M1S : SWING MOTOR
C70 : RUNNING CAPACITOR
3.15A
Fu
: PROTECTIVE EARTH
H2
H3
H1
indoor
GRN
WHT
RED
BLK
/
YLW
X1M
2
3
1
NOTE THAT OPERATION WILL
THE MAIN POWER SUPPLY IS
TURNED OFF AND THEN BACK
RESTART AUTOMATICALLY IF
ON AGAIN.
S1W : OPERATION SWITCH
(
SW7
)
S6~S37
,
X11A
,
X21A : CONNECTOR
PCB1~PCB4 : PRINTED CIRCUIT BOARD
R1T~R2T : THERMISTOR
X1M : TERMINAL STRIP
CAUTION
FIELD WIRING.
2
3
1
3D033909B
outdoor
CONTROLLER
WIRELESS
REMOTE
indoor
H1P
S1W
S2W
(
4
)
S4W
M2S
H2P
M1S
PCB4
PCB3
H3P
RECEIVER
SIGNAL
M
M
L1S
S24
S42
S26
S41
S23
S25
S6
PCB2
S31
R1T
S21
TRANSMISSION
S32
R2T
CIRCUIT
HA
3.15A
FU
S7
S302
S203
S201
S301
H3
H2
H1
S44
S43
S8
S204
S202
PCB1
M
M
(
LOWER FAN MOTOR
)
(
UPPER FAN MOTOR
)
M2F
M1F
FG
GRN
WHT
BLK
RED
/
S4W : AIR OUTLET SELECTION SWITCH
S6~S302 : CONNECTOR
FU : FUSE
M2S : LOWER AIR OUTLET MOTOR
S1W : OPERATION SWITCH
PCB1~PCB4 : PRINTED CIRCUIT BOARD
S2W
(
4
)
: UPWARD AIR FLOW LIMIT SWITCH
M1S : SWING MOTOR
L1S : LIMIT SWITCH
X1M : TERMINAL STRIP
R1T
,
R2T : THERMISTOR
M1F
,
M2F : FAN MOTOR
H1P
,
H2P
,
H3P : PILOT LAMP
YLW
: PROTECTIVE EARTH
X1M
2
3
1
FIELD WIRING.
3
2
1
outdoor
3D034713A

Table of Contents

Related product manuals