EasyManua.ls Logo

Daikin Super Multi Plus E-Series CTXG50EV1BW - Page 484

Daikin Super Multi Plus E-Series CTXG50EV1BW
492 pages
Print Icon
To Next Page IconTo Next Page
To Next Page IconTo Next Page
To Previous Page IconTo Previous Page
To Previous Page IconTo Previous Page
Loading...
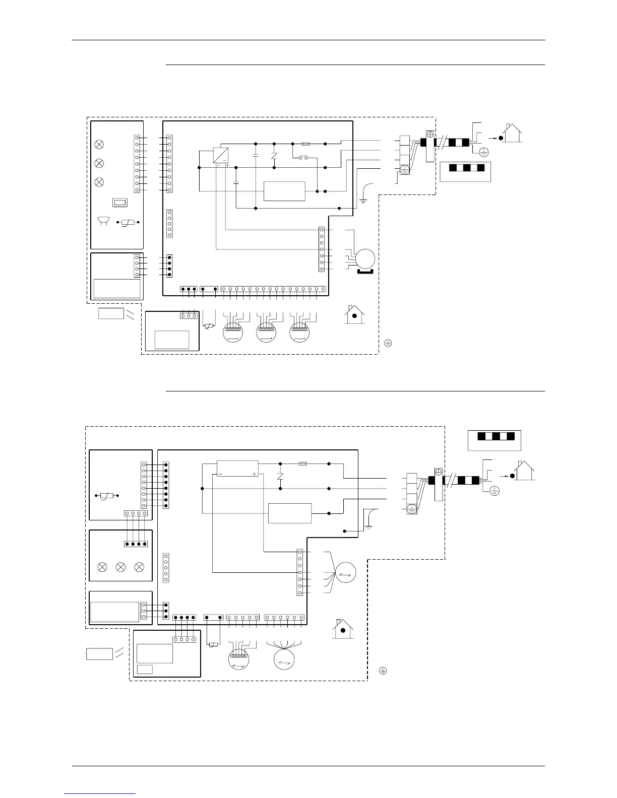
Wiring Diagrams SiBE18-821_C
472 Appendix
FTXS20/25/35/42/50G2V1B
FTXS60/71FV1B
1
FU1
X1M
PCB1
PCB3
S46
S49
2
H1
F1U
BLK
11
BLK
1
LED1
3
BLK
3.15A
H1P
WHT
~
OUTDOOR
2
BLK
C102 V1
BLK
LED2
RED
3
H2
MR10
BLK
GRN
H2P
BLK
FIELD WIRING.
BLK
LED3
GRN
C101
BLK
/
H3
YLW
H3P
99
BLK
CAUTION
FG
SW1
S21
S1
HA
7
RED
RTH1BZ
R1T
4
BLU
S25
MS
BRN
BLK
11
PCB4
ORG
BLK
3~
S26
BLK
1
WHT
S41
S47 S32
44
BLK
M1F
16 4121121431311027359611815
BLK
BLK
BLK
BLK
BLK
PNK
PNK
PNK
BLU
BLU
BLU
RED
RED
RED
ORG
ORG
ORG
YLW
YLW
YLW
S48
PCB2
1
3
INDOOR
R2T
MSW MSWMSW
M2SM1S M3S
INTELLIGENT EYE
SENSOR
WIRELESS
REMOTE
CONTROLLER
SIGNAL
RECEIVER
TRANSMISSION
CIRCUIT
NOTE THAT OPERATION WILL RESTART
AUTOMATICALLY IF THE MAIN POWER SUPPLY
IS TURNED OFF AND THEN BACK ON AGAIN.
BZ : BUZZER
C101, C102 : CAPACITOR
FG : FRAME GROUND
F1U : FUSE
H1P~H3P : PILOT LAMP
MR10 : MAGNETIC RELAY
M1F : FAN MOTOR
M1S~M3S : SWING MOTOR
PCB1~PCB4 : PRINTED CIRCUIT BOARD
R1T, R2T : THERMISTOR
S1~S49 : CONNECTOR
SW1 : OPERATION SWITCH
V1 : VARISTOR
X1M : TERMINAL STRIP
: PROTECTIVE EARTH
3D058246C
PCB4
PCB3
PCB5
LED1
H1P
R1T
t
S37
S38
°
LED2
H2P
LED3
H3P
PCB2
S27
S36
S1W
S26
S35
S21
S29
S28
PCB1
R2T
S32
t°
~
RECTIFIER
1
RED
M1S
M
S6
ORG
YLW
~
PNK
5
BLU
1
BRN
RED
M2S
S8
M
ORG
YLW
7
1
3.15A
S1
PNK
6
Fu
BLU
WHT
BRN
RED
BLU
ORG
H2
H3
H1
INDOOR
FG
M1F
M
GRN
WHT
RED
/
BLK
YLW
X1M
3
2
1
FIELD WIRING.
CAUTION
3
2
1
OUTDOOR
INTELLIGENT EYE
SENSOR
WIRELESS
REMOTE
CONTROLLER
SIGNAL
RECEIVER
TRANSMISSION
CIRCUIT
NOTE THAT OPERATION WILL
RESTART AUTOMATICALLY IF
THE MAIN POWER SUPPLY IS
TURNED OFF AND THEN BACK
ON AGAIN.
FG : FRAME GROUND
Fu : FUSE
H1 ~ H3 : HARNESS
H1P ~ H3P : PILOT LAMP
M1F : FAN MOTOR
M1S, M2S : SWING MOTOR
PCB1~ PCB5 : PRINTED CIRCUIT BOARD
R1T, R2T : THERMISTOR
S1 ~ S38 : CONNECTOR
S1W : OPERATION SWITCH
X1M : TERMINAL STRIP
: PROTECTIVE EARTH
3D038530T

Table of Contents

Related product manuals