EasyManua.ls Logo

Daikin Super Multi Plus E-Series CTXG50EV1BW - Page 485

Daikin Super Multi Plus E-Series CTXG50EV1BW
492 pages
Print Icon
To Next Page IconTo Next Page
To Next Page IconTo Next Page
To Previous Page IconTo Previous Page
To Previous Page IconTo Previous Page
Loading...
SiBE18-821_C Wiring Diagrams
Appendix 473
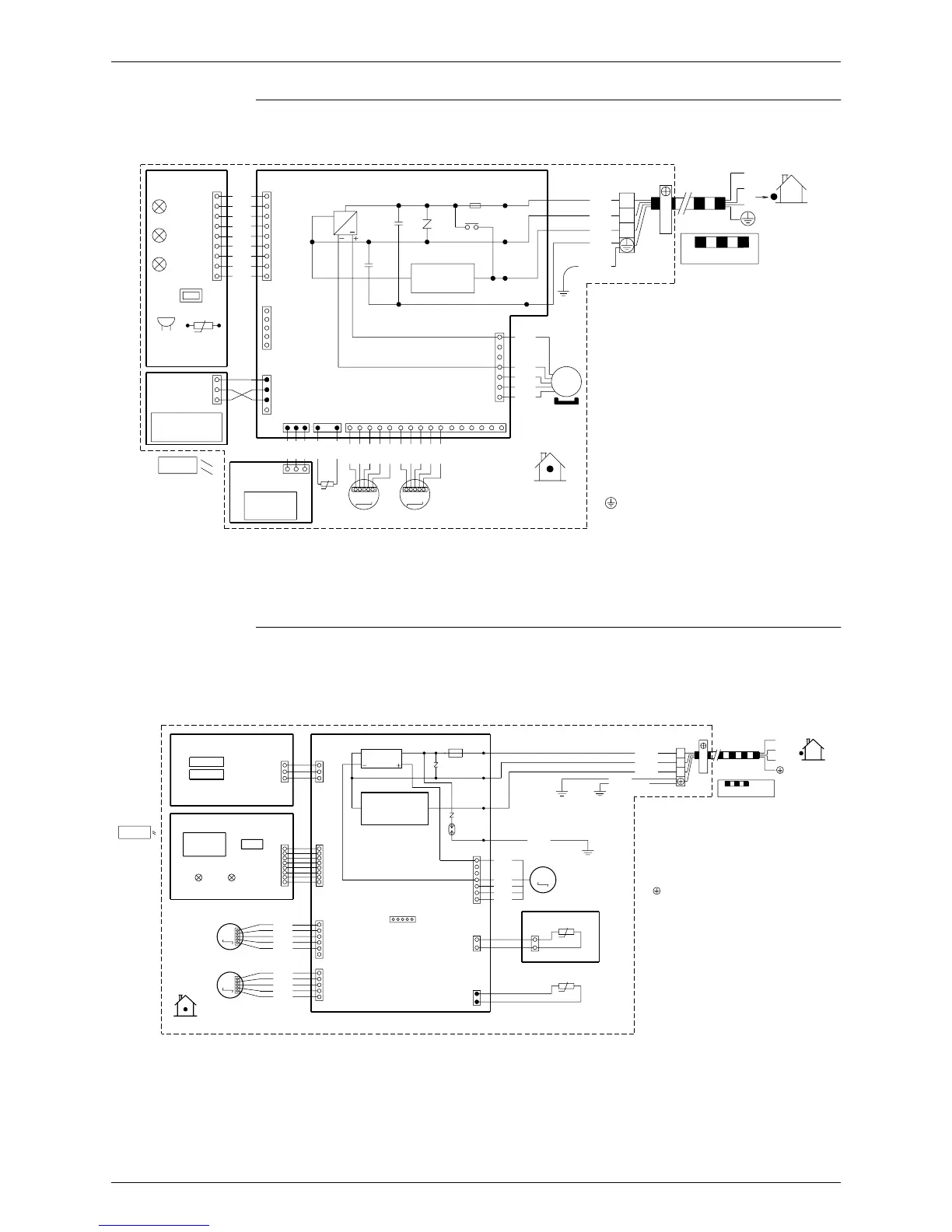
FTXS60/71GV1B
2.3.2 Floor Standing Type
FVXS25/35/50FV1B
GRN
/
YLW
1
FU1
F1U
X1M
PCB1
PCB3
S46
S49
2
H1
BLK11
BLK
1
LED1
H1P
3
BLK
3.15A
WHT
~
OUTDOOR
2
BLK
C102 V1
BLK
LED2
H2P
RED
3
H2
MR10
BLK
GRN
BLK
FIELD WIRING.
BLK
LED3
H3P
C101
BLK
H3
99 BLK
CAUTION
FG
SW1
S21
S1
HA
7
RED
RTH1
R1T
BZ
4
BLU
S25
BLK
MS
3~
BRN
1
1
PCB4
BLK
ORG
S36
1
WHT
3
S41S47 S32
BLK
4
M1F
12 1318 71514316 111012 9
BLK
BLK
BLK
BLK
BLK
PNK
PNK
BLU
BLU
RED
RED
ORG
ORG
YLW
YLW
S48PCB2
1
3
INDOOR
R2T
MSW MSW
M2SM1S
TRANSMISSION
CIRCUIT
INTELLIGENT EYE
SENSOR
WIRELESS
REMOTE
CONTROLLER
SIGNAL
RECEIVER
NOTE THAT OPERATION WILL RESTART
AUTOMATICALLY IF THE MAIN POWER SUPPLY
IS TURNED OFF AND THEN BACK ON AGAIN.
BZ : BUZZER
C101, C102
: CAPACITOR
FG
: FRAME GROUND
F1U
: FUSE
H1P~H3P
: PILOT LAMP
MR10 : MAGNETIC RELAY
M1F
: FAN MOTOR
M1S, M2S
: SWING MOTOR
PCB1~PCB4 : PRINTED CIRCUIT BOARD
R1T, R2T
: THERMISTOR
S1~S49 : CONNECTOR
SW1 : OPERATION SWITCH
V1
: VARISTOR
X1M : TERMINAL STRIP
: PROTECTIVE EARTH
3D064800A
M
S1W
outdoor
FIELD WIRING.
M
M
S2W(4)
3
2
1
indoor
3
X1M
2
1
E3
S26
BLU
S42
PCB4
S48
S41
M1S
3.15A
BRN
RED
1
RECTIFIER
RED
LED2
WHT
V2
5
H2
GRN
S4W
ORG
6
M2S
PNK
PCB3
V1
4
YLW
LED1
H3
S21
S1
BLU
SA1
S32
H1
S46
HA
S27
M1F
RED
PCB1
1
F1U
E4
E3
BLU
GRN/YLW
GRN
YLW
E1
1
t°
PCB2
H1P
R1T
7
ORG
PNK
BLK
S47
t°
H2P
RED
S49
R2T
WHT
ORG
CAUTION
~~
NOTE THAT OPERATION WILL
RESTART AUTOMATICALLY IF
THE MAIN POWER SUPPLY IS
TURNED OFF AND THEN BACK
ON AGAIN.
WIRELESS
REMOTE
CONTROLLER
SIGNAL
RECEIVER
TRANSMISSION
CIRCUIT
: PROTECTIVE EARTH
F1U
: FUSE
H1P,H2P : PILOT LAMP
M1F : FAN MOTOR
M1S : SWING MOTOR
M2S : LOWER AIR OUTLET MOTOR
PCB1~PCB4
: PRINTED CIRCUIT BOARD
R1T,R2T
: THERMISTOR
S1~S49
: CONNECTOR
S1W
: OPERATION SWITCH
S2W(4)
:
UPWARD AIR FLOW LIMIT SWITCH
S4W
:
AIR OUTLET SELECTION SWITCH
X1M : TERMINAL STRIP
E3 : EARTH TERMINAL(HEAT EX.)
E4 :
EARTH TERMINAL(SHIELD PLATE)
3D055953A

Table of Contents

Related product manuals