EasyManua.ls Logo

Daikin Super Multi Plus E-Series CTXG50EV1BW - Page 486

Daikin Super Multi Plus E-Series CTXG50EV1BW
492 pages
Print Icon
To Next Page IconTo Next Page
To Next Page IconTo Next Page
To Previous Page IconTo Previous Page
To Previous Page IconTo Previous Page
Loading...
Wiring Diagrams SiBE18-821_C
474 Appendix
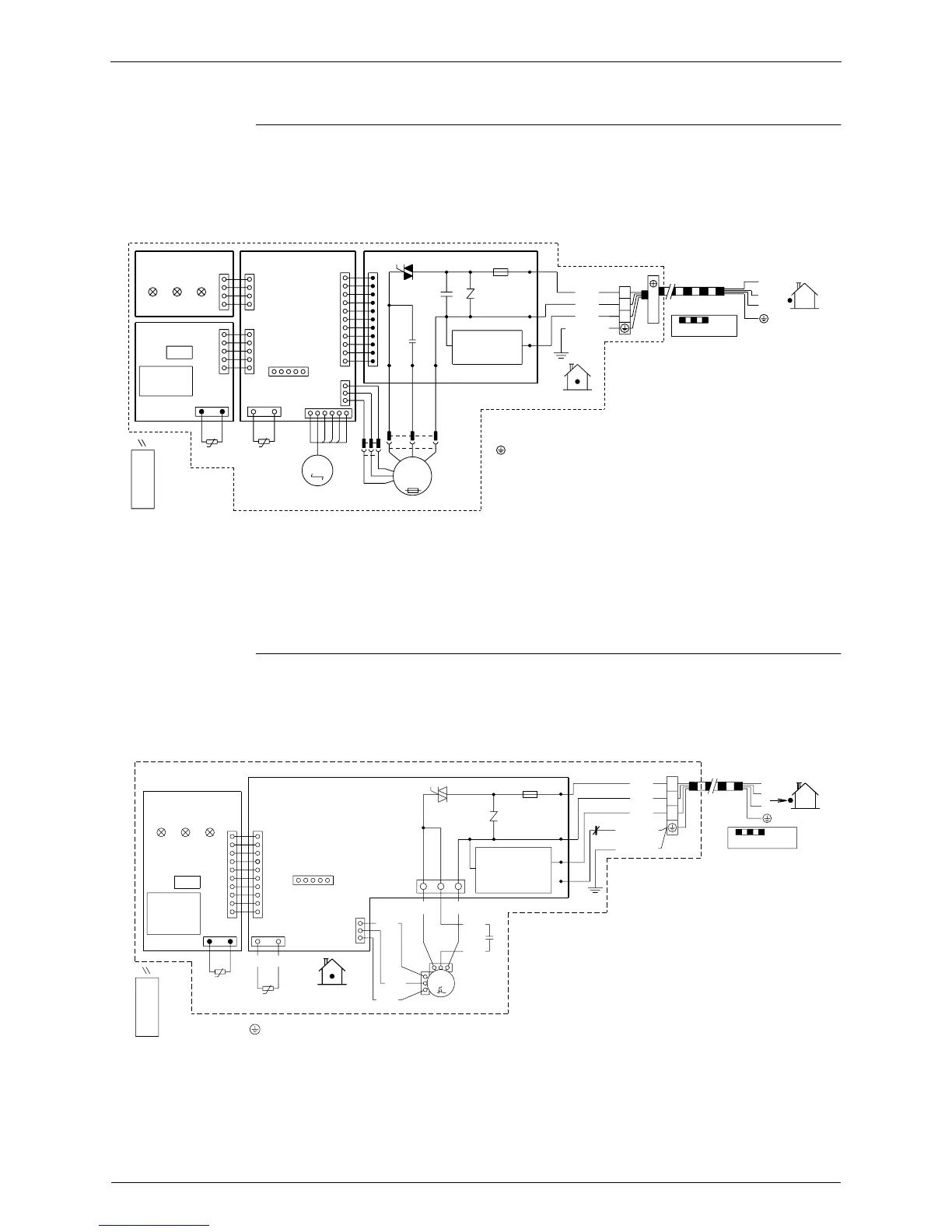
2.3.3 Floor / Ceiling Suspended Dual Type
FLXS25/35/50/60BAVMB
2.3.4 Duct Connected Type
FDXS25/35EAVMB, FDXS50/60CVMB
LED
H1P
PCB3
LED
H2P
PCB4
S1W
LED
H3P
R1T
S31
t°
S27
S25
S24
S26
S32
R2T
t°
PCB1
S21
HA
M
S6
M1S
S37
S7
X21A
S36
H4
100
1~
M
t°
H5
C70
°C
M1F
H6
X11A
PCB2
3.15A
Fu
H2
H3
H1
indoor
GRN
WHT
RED
BLK
/
YLW
X1M
2
3
1
CAUTION
FIELD WIRING.
2
3
1
outdoor
WIRELESS
REMOTE
CONTROLLER
NOTE THAT OPERATION WILL
RESTART AUTOMATICALLY IF
THE MAIN POWER SUPPLY IS
TURNED OFF AND THEN BACK
ON AGAIN.
SIGNAL
RECEIVER
TRANSMISSION
CIRCUIT
PCB1~PCB4 : PRINTED CIRCUIT BOARD
R1T~R2T : THERMISTOR
S6~S37, X11A, X21A : CONNECTOR
S1W : OPERATION SWITCH(SW7)
X1M : TERMINAL STRIP
: PROTECTIVE EARTH
C70 : RUNNING CAPACITOR
FU : FUSE
H1P~H3P : PILOT LAMP
M1F : FAN MOTOR
M1S : SWING MOTOR
3D033909F
PCB2
RECEIVER
SIGNAL
LED
H1P
LED
H2P
S1W
LED
H3P
2
RTH1
R1T
t°
10
1
S1
1
C1
BRN
F1U :
S26
2
PCB1
S32
R2T
t°
1
10
:
:
BRN
S21
1
FUSE
(
CAPACITOR
(
M1F
)
PROTECTIVE EARTH
indoor
3
1
S7
BLU
GRY
PPL
S1
)
RED
6
V1TR
1
M1F
~
M
3
BLK
Q1M
130°C
1
WHT
YLW
C1
3.15A
F1U
GND
H2
H3
H1
Z1C
N=2
GRN
GRN
WHT
/
/
BLK
RED
YLW
YLW
X1M
2
3
1
CAUTION
FIELD WIRING.
2
3
1
outdoor
WIRELESS
REMOTE
CONTROLLER
NOTE THAT OPERATION WILL
RESTART AUTOMATICALLY IF
THE MAIN POWER SUPPLY IS
TURNED OFF AND THEN BACK
ON AGAIN.
TERMINAL FOR
CENTRALIZED CONTROL
TRANSMISSION
CIRCUIT
H1P ~ H3P : PILOT LAMP
M1F : FAN MOTOR
PCB1 ~ PCB2 : PRINTED CIRCUIT BOARD
Q1M : THERMAL PROTECTOR
(
M1F EMBEDDED
)
R1T ~ R2T : THERMISTOR
S1 ~ S32, RTH1 : CONNECTOR
S1W : OPERATION SWITCH
V1TR : PHASE CONTROL CIRCUIT
X1M : TERMINAL BLOCK
Z1C : NOISE FILTER
(
FERRITE CORE
)
3D045012L

Table of Contents

Related product manuals