EasyManua.ls Logo

Danfoss ECL Comfort 296 - Page 35

Danfoss ECL Comfort 296
199 pages
Print Icon
To Next Page IconTo Next Page
To Next Page IconTo Next Page
To Previous Page IconTo Previous Page
To Previous Page IconTo Previous Page
Loading...
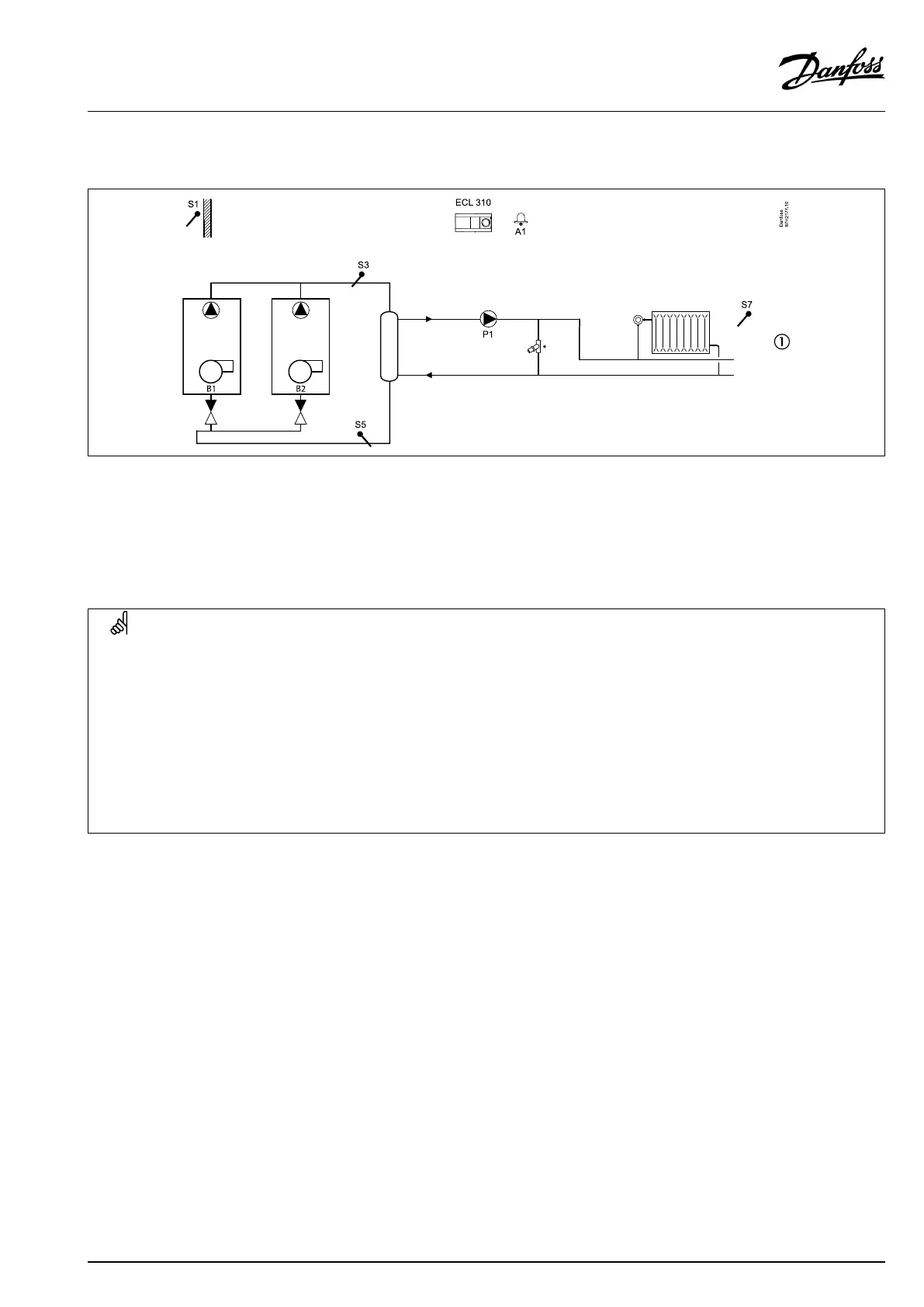
A375.1,exampled
2xboilerON/OFFcontrolforaheatingcircuit.Theboilercircuitisequippedwithalowlossheader.
*=pressurereliefvalve
Thepumpsintheboilerarenotcontrolled.
Rotatingsequence:Burner1isactivebeforeburner2.Nextdayburner2isactivebeforeburner1.
Oneburnerstepisactiveatlowheatdemand.Atincreasedheatdemandthenextburnerstepisactivatedadditionally
Thelastburnerstepcanbedisablediftheoutdoortemperatureishigherthanasetvalue.
SpecialsettingsfortypeA375.1,exampled:
Navigation:
IDno.:
Recommendedsetting:
Heatingcircuit(circuit1)
Sequencetype(code)forcontrollingtheburners:
MENU\Settings\Boiler:'Sequencetype'
110720
Numberoftotalburnersteps:
MENU\Settings\Boiler:‘Steps'
110732
VI.GU.L2.02
©Danfoss|2017.09|35
OperatingGuideECLComfort210/296/310,applicationA275/A375

Other manuals for Danfoss ECL Comfort 296

Related product manuals