EasyManua.ls Logo

Danfoss VLT AQUA Drive FC 202 - Page 280

Danfoss VLT AQUA Drive FC 202
370 pages
Print Icon
To Next Page IconTo Next Page
To Next Page IconTo Next Page
To Previous Page IconTo Previous Page
To Previous Page IconTo Previous Page
Loading...
1
2
3
4
5
130BF767.10
6
7
8
10
11
12
14
13
9
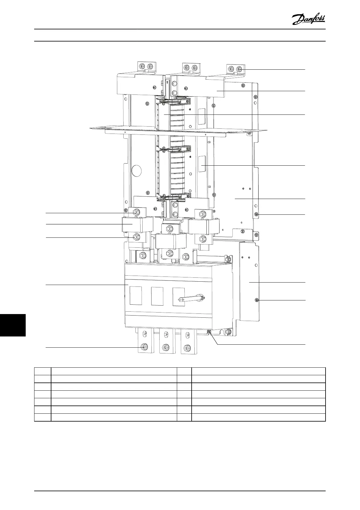
1 Nut (17 mm) in upper fuse 8 RFI lter
2 AC fuse 9 RFI cable access
3 Nut (17 mm) in lower fuse 10 Upper input plate
4 Disconnect 11 Nut (8 mm) in upper input plate
5 Nut (17 mm) at terminal L1 12 Lower input plate
6 Nut (30 mm) at upper RFI lter 13 Nut (8 mm) in lower input plate
7 AC input busbar 14 Nut (8 mm)
Illustration 13.9 Split Input Plate with Optional RFI Filter, AC Fuses, and Disconnect
E1h–E4h Drive Disassembly a...
VLT
®
FC Series, D1h–D8h, Da2/Db2/Da4/Db4, E1h–E4h, J8/J9
278 Danfoss A/S © 02/2019 All rights reserved. MG94A502
1313

Table of Contents

Other manuals for Danfoss VLT AQUA Drive FC 202

Related product manuals