EasyManua.ls Logo

Danfoss VLT AQUA Drive FC 202 - Page 286

Danfoss VLT AQUA Drive FC 202
370 pages
Print Icon
To Next Page IconTo Next Page
To Next Page IconTo Next Page
To Previous Page IconTo Previous Page
To Previous Page IconTo Previous Page
Loading...
130BF772.10
1
2
3
4
5
7
9
10
6
8
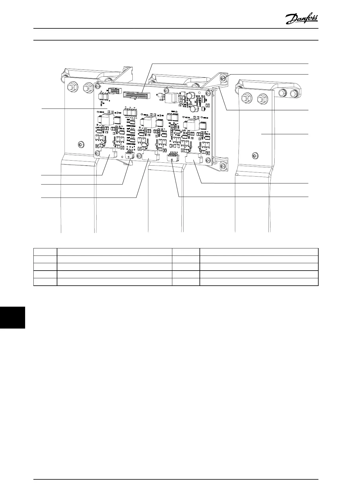
1 Gate drive card 6 Screw (T20)
2 MK501 7 Leg of mounting plate
3 MK100 8 IGBT output busbar
4 MK601 9 MK701
5 MK101 10 MK 201 (for brake option)
Illustration 13.12 Gate Drive Card Mounting Plate
E1h–E4h Drive Disassembly a...
VLT
®
FC Series, D1h–D8h, Da2/Db2/Da4/Db4, E1h–E4h, J8/J9
284 Danfoss A/S © 02/2019 All rights reserved. MG94A502
1313

Table of Contents

Other manuals for Danfoss VLT AQUA Drive FC 202

Related product manuals