EasyManua.ls Logo

Danfoss VLT AQUA FC 202 - Page 33

Danfoss VLT AQUA FC 202
148 pages
Print Icon
To Next Page IconTo Next Page
To Next Page IconTo Next Page
To Previous Page IconTo Previous Page
To Previous Page IconTo Previous Page
Loading...
S1 S2
S2
F1
F1
S2F1
DC ‘-’
DC ‘+’
1739.1
1203.2
1163.2
1694.1
1654.1
1098.1
130BB378.10
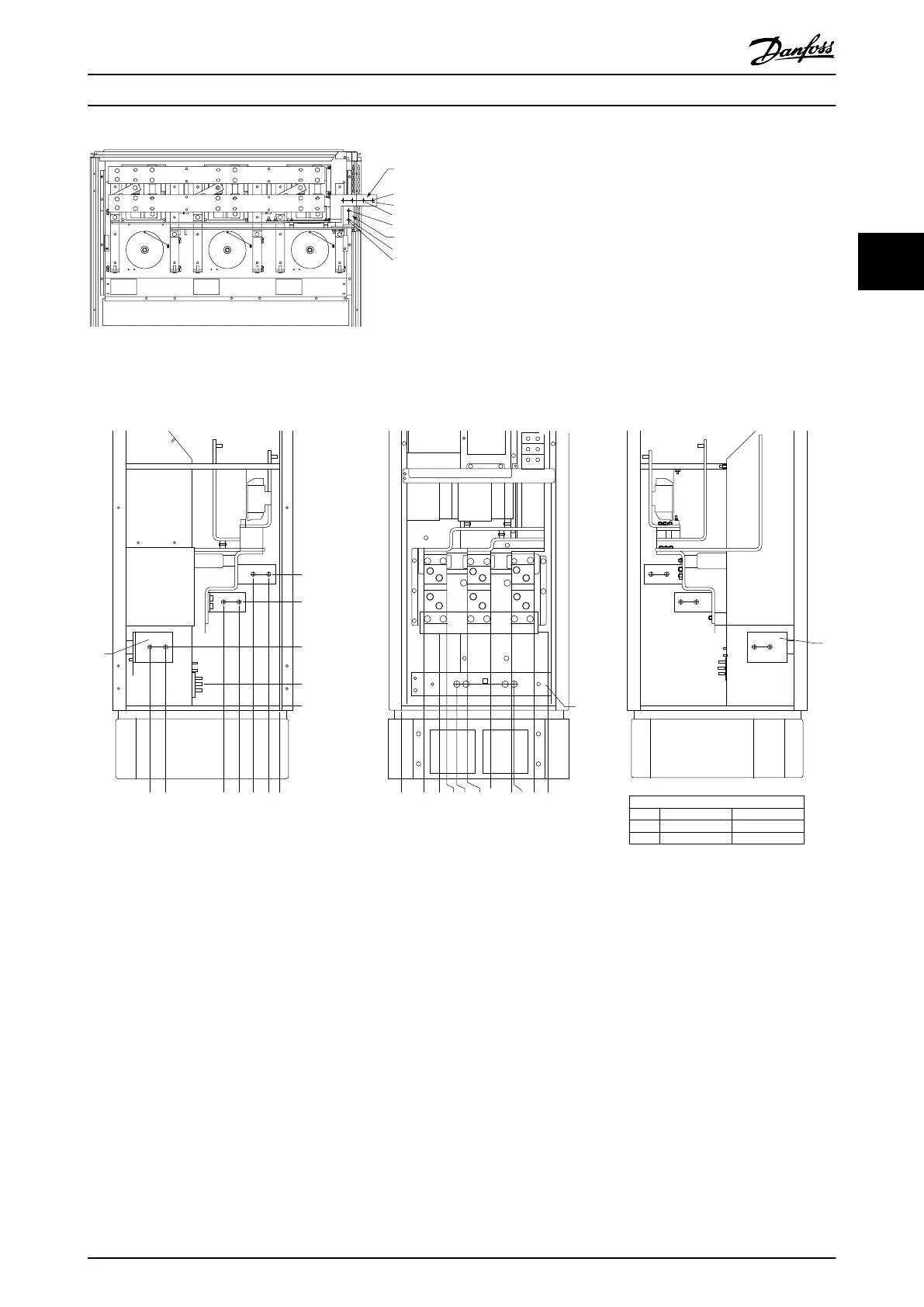
Illustration 3.32 Terminal Locations - Regen Terminals - F2 and
F4
Terminal locations - Rectifier (F1, F2, F3 and F4)
74.6 [2.9]
0.0 [0.0]
125.8 [4.95]
218.6 [8.61]
293.6 [11.56]
362.6 [14.28]
437.6 [17.23]
149.6 [5.89]
486.6 [19.16]
183.4 [7.22]
373.4 [14.70]
0.0 [0.00]
70.4 [2.77]
193.9 [7.64]
343.1 [13.51]
38.1 [1.50]
0.0 [0.00]
90.1 [3.55]
136.6 [5.38]
188.6 [7.42]
B
A
435.5 [17.15]
LOAD SHARE LOCATION
DIM F1/F2 F3/F4
A 380.5 [14.98] 29.4 [1.16]
B 432.5 [17.03] 81.4 [3.20]
6
5
4
130BA848.12
CH22 CH22
R/L1 91 S/L2 92
FASTENER TORQUE: M8 9.6 Nm (7 FT-LB)
T/L3 93
FASTENER TORQUE: M10 19 Nm (14 FT-LB)
FASTENER TORQUE: M10 19 Nm (14 FT-LB)
DC 89
FASTENER TORQUE: M10 19 Nm (14 FT-LB)
DC 89
CH22 CH22 CH22 CH22
CTI25MB C TI25MB
AUXAUXAUXAUXAUX
3
2
1
Illustration 3.33 Terminal Locations - Rectifier (Left Side, Front and Right Side View). The Gland Plate is 42 mm below .0 Level.
1) Loadshare Terminal (-)
2) Earth Ground Bar
3) Loadshare Terminal (+)
How to Install VLT AQUA Drive FC 202 Operation Instructions
MG20P402 - Rev. 2013-12-16 31
3 3

Table of Contents

Other manuals for Danfoss VLT AQUA FC 202

Related product manuals