EasyManua.ls Logo

Danfoss VLT AutomationDrive FC 361 Series - Page 29

Danfoss VLT AutomationDrive FC 361 Series
102 pages
Print Icon
To Next Page IconTo Next Page
To Next Page IconTo Next Page
To Previous Page IconTo Previous Page
To Previous Page IconTo Previous Page
Loading...
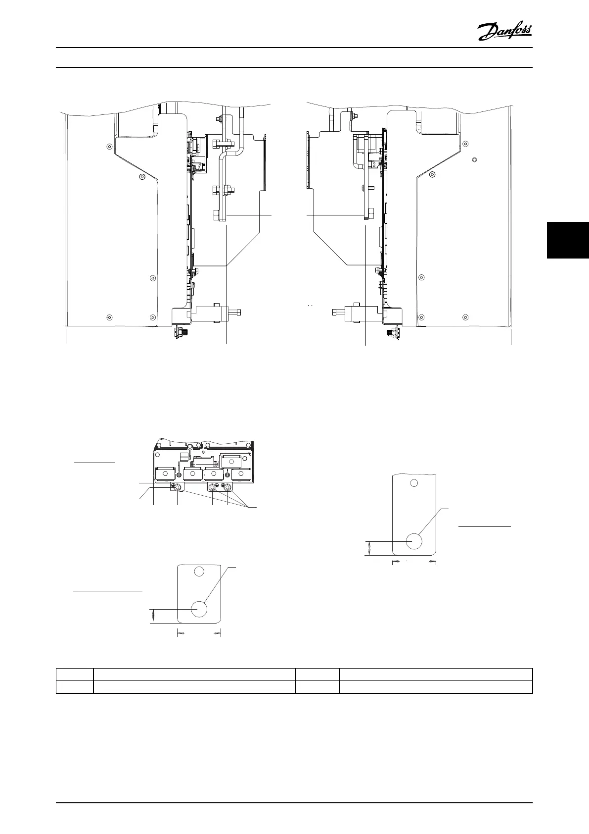
M10
13 (0.5)
32 (1.3)
59 (2.3)
10 (0.4)
244 (9.6)
272 (10.7)
0.0
0.0
1
2
4
3
5
M10
13 (0.5)
32 (1.3)
145 (5.7)
182 (7.2)
3X M8x18
0
0
e30bg573.10
1 and 4 Mains terminals 2 and 5 Motor terminals
3 Ground terminals
Illustration 5.6 J8 Terminal Dimensions (Side Views)
Specications Design Guide
MG06K102 Danfoss A/S © 03/2019 All rights reserved. 27
5 5

Table of Contents

Related product manuals