EasyManua.ls Logo

Danfoss VLT HVAC Drive FC 102 - Page 133

Danfoss VLT HVAC Drive FC 102
370 pages
Print Icon
To Next Page IconTo Next Page
To Next Page IconTo Next Page
To Previous Page IconTo Previous Page
To Previous Page IconTo Previous Page
Loading...
6
4
5
3
2
1
e30bg470.11
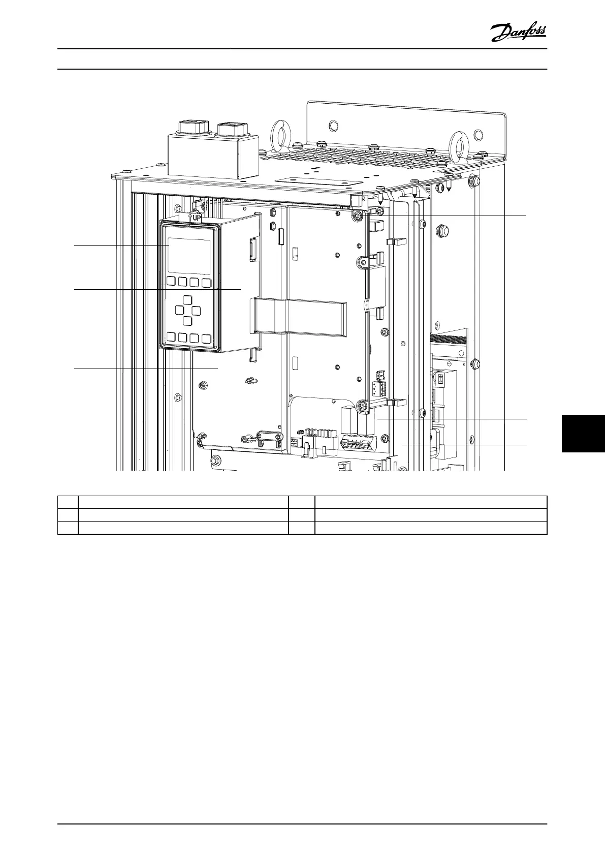
1 LCP (Local control panel) 4 Screw (T20)
2 LCP cradle 5 Power card
3 Control card mounting plate 6 Power card mounting plate
Illustration 10.1 Control Card Mounting Plate
D1h/D3h/D5h/D6h/J8 Drive Di... Service Guide
MG94A502 Danfoss A/S © 02/2019 All rights reserved. 131
10 10

Table of Contents

Other manuals for Danfoss VLT HVAC Drive FC 102

Related product manuals