EasyManua.ls Logo

Danfoss VLT HVAC Drive FC 102 - Exploded View of D2 H;D4 H;D7 H;D8 H;J9 Drive

Danfoss VLT HVAC Drive FC 102
370 pages
Print Icon
To Next Page IconTo Next Page
To Next Page IconTo Next Page
To Previous Page IconTo Previous Page
To Previous Page IconTo Previous Page
Loading...
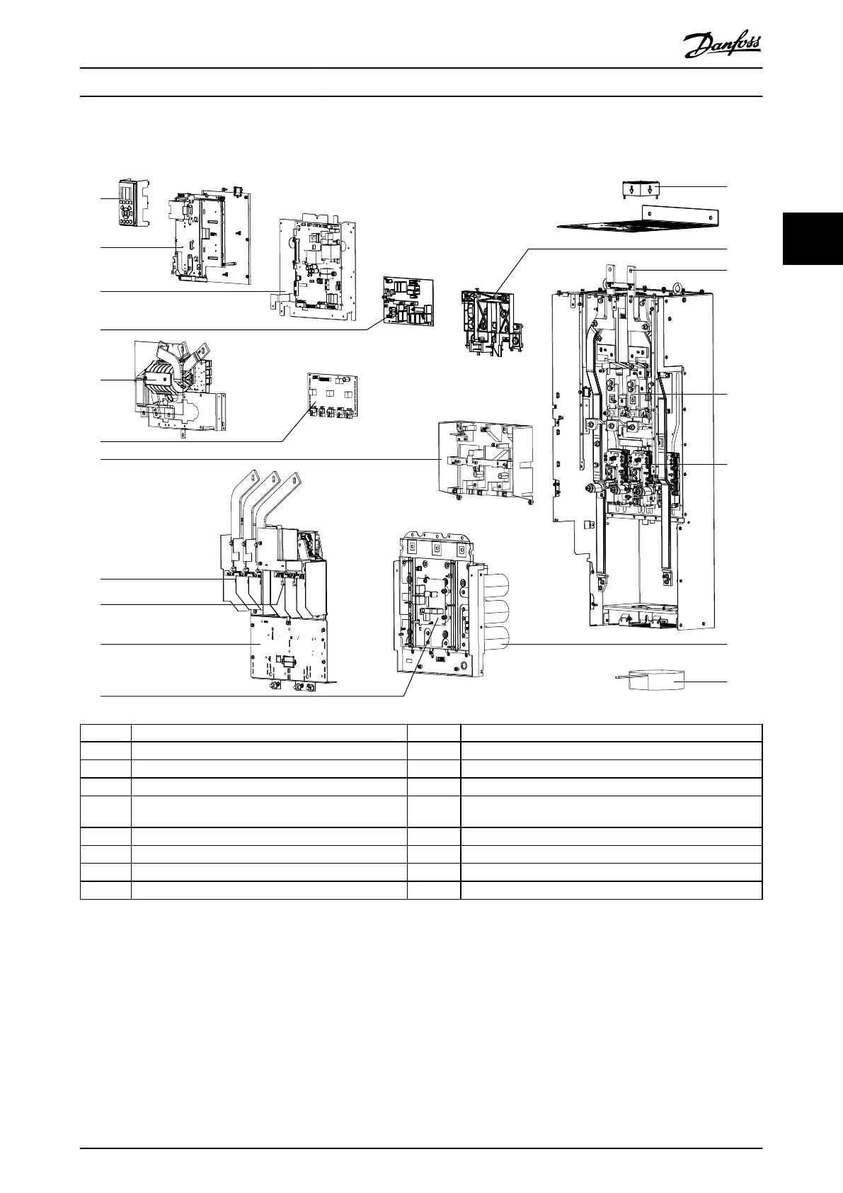
3.6.2 Exploded View of D2h/D4h/D7h/D8h/J9 Drive
1
2
3
4
5
6
7
8
9
10
11
12
13
14
15
16
17
18
e30bf867.11
1 Local control panel and LCP cradle 10 Power terminal mounting plate
2 Control card and mounting plate 11 Balance/high frequency card
3 Power card and mounting plate 12 Top fan (IP20 only)
4 Inrush card 13 Inrush card bracket
5 RFI lter (optional) 14 Regen/load share terminals (optional)
6 Gate drive card 15 SCR/diode modules
7 Gate drive card support bracket 16 IGBT modules
8 Mains input terminals 17 Capacitor bank
9 Motor terminals 18 Heat sink fan
Illustration 3.3 Exploded View D4h Drive (D2h/D7h/D8h/J9 Drives are similar).
Product Overview Service Guide
MG94A502 Danfoss A/S © 02/2019 All rights reserved. 23
3 3

Table of Contents

Other manuals for Danfoss VLT HVAC Drive FC 102

Related product manuals