EasyManua.ls Logo

Danfoss VLT HVAC Drive FC 102 - Fan Power Card in E-Sized Drives

Danfoss VLT HVAC Drive FC 102
370 pages
Print Icon
To Next Page IconTo Next Page
To Next Page IconTo Next Page
To Previous Page IconTo Previous Page
To Previous Page IconTo Previous Page
Loading...
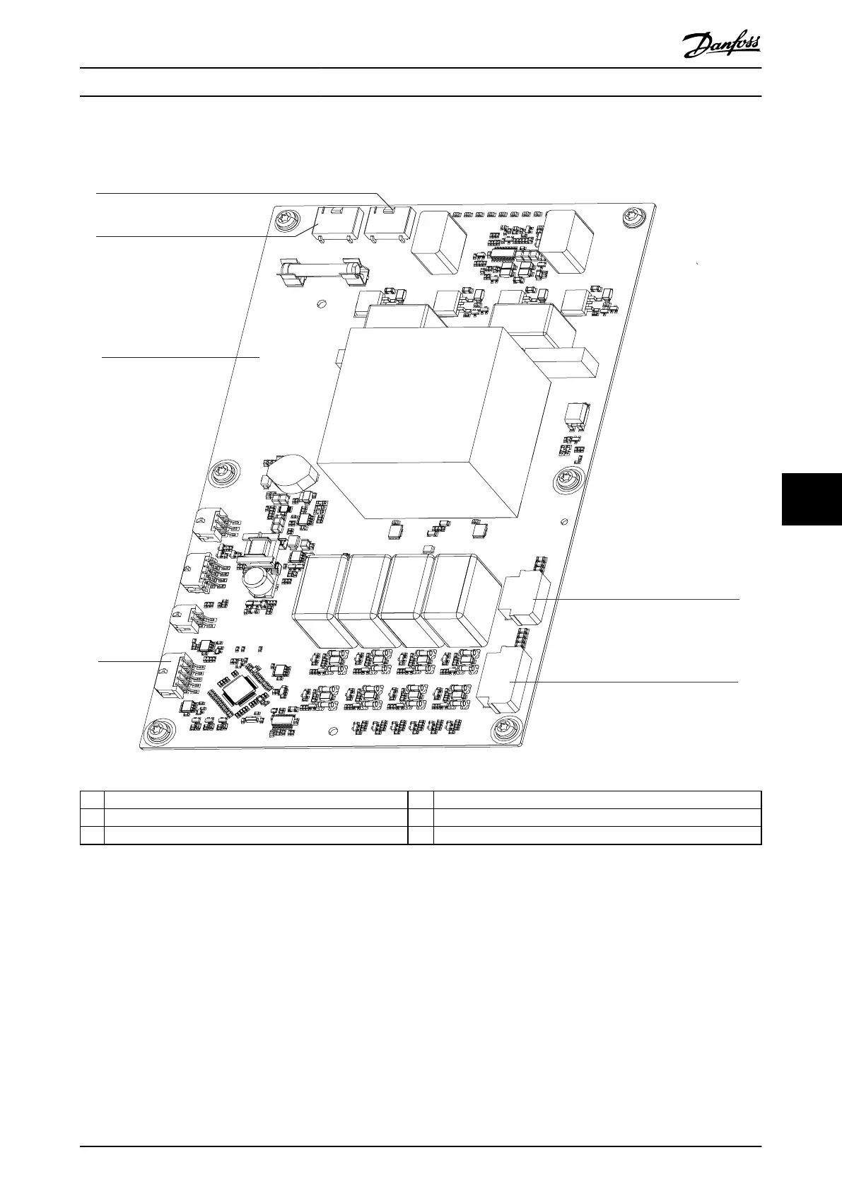
8.3.7 Fan Power Card in E-sized Drives
4
5
130BF939.10
6
1
2
3
1 MK802: DC power 4 MK1200: Inrush card (MK110) and power card (MK105)
2 MK803: Power card signals (MK902) 5 MK602: Door/top fan control
3 Fan power card (PCA16) 6 MK600: Heat sink fan control
Illustration 8.7 Fan Power Card in E-sized Drives
Test Procedures Service Guide
MG94A502 Danfoss A/S © 02/2019 All rights reserved. 97
8 8

Table of Contents

Other manuals for Danfoss VLT HVAC Drive FC 102

Related product manuals