EasyManua.ls Logo

Danfoss VLT HVAC Drive FC 102 - Page 137

Danfoss VLT HVAC Drive FC 102
370 pages
Print Icon
To Next Page IconTo Next Page
To Next Page IconTo Next Page
To Previous Page IconTo Previous Page
To Previous Page IconTo Previous Page
Loading...
1
10
11
8
14
15
7
5
4
3
12
6
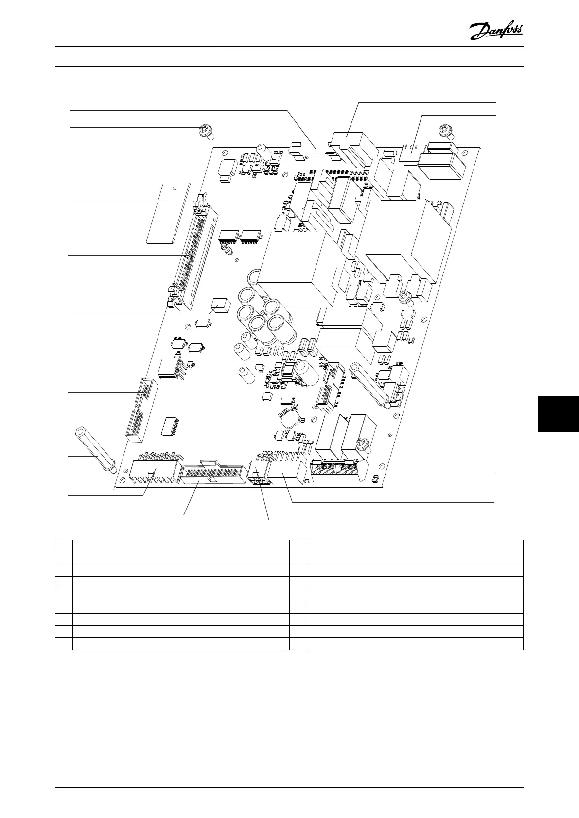
130BF865.10
13
2
9
1 FK901: SMPS fuse 9 MK103: Gate drive and inrush control signals
2 Screw (T20) 10 MK901: DC input terminals (used with split bus power supply)
3 Current scaling card (not in parallel drive modules) 11 MK902: DC voltage from DC bus to power card SMPS
4 MK102: Control card to power card connection 12 MK106: Brake temperature switch input
5 MK100: Current scaling card connector (not in parallel drive
modules)
13 MK500: Customer terminals for relays 1 and 2
6 MK104: Signal test board connector 14 MK501: Heat sink and door/top fan control
7 Stando (8 mm) 15 MK502: EMC relay control
8 MK101: Current sensor feedback
Illustration 10.3 Power Card
D1h/D3h/D5h/D6h/J8 Drive Di... Service Guide
MG94A502 Danfoss A/S © 02/2019 All rights reserved. 135
10 10

Table of Contents

Other manuals for Danfoss VLT HVAC Drive FC 102

Related product manuals