EasyManua.ls Logo

Danfoss VLT HVAC Drive FC 102 - Page 157

Danfoss VLT HVAC Drive FC 102
370 pages
Print Icon
To Next Page IconTo Next Page
To Next Page IconTo Next Page
To Previous Page IconTo Previous Page
To Previous Page IconTo Previous Page
Loading...
2
1
8
9
10
11
12
13
15
6
5
4
3
7
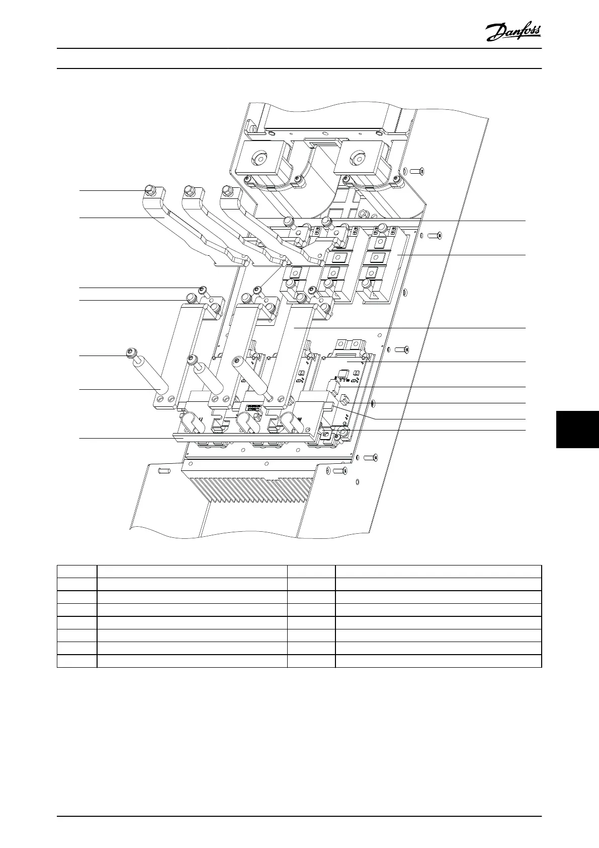
130BF863.10
14
1 Nut (10 mm) 9 SCR module
2 SCR input busbar 10 IGBT output busbar
3 Thread-forming screw (T25) 11 IGBT module (1 of 3)
4 Screw (T30) 12 IGBT gate signal connector
5 Screw (T30) 13 IGBT thermal sensor connector
6 Current sensor cylinder busbar 14 Snubber capacitor
7 Cylinder busbar support bracket 15 Screw (T30)
8 Screw (T30)
Illustration 10.12 SCRs and IGBTs
D1h/D3h/D5h/D6h/J8 Drive Di... Service Guide
MG94A502 Danfoss A/S © 02/2019 All rights reserved. 155
10 10

Table of Contents

Other manuals for Danfoss VLT HVAC Drive FC 102

Related product manuals