EasyManua.ls Logo

Danfoss VLT HVAC Drive FC 102 - Page 268

Danfoss VLT HVAC Drive FC 102
370 pages
Print Icon
To Next Page IconTo Next Page
To Next Page IconTo Next Page
To Previous Page IconTo Previous Page
To Previous Page IconTo Previous Page
Loading...
130BF763.10
1
9
2
3
4
5
6
7
8
10
11
13
14
15
16
17
12
18
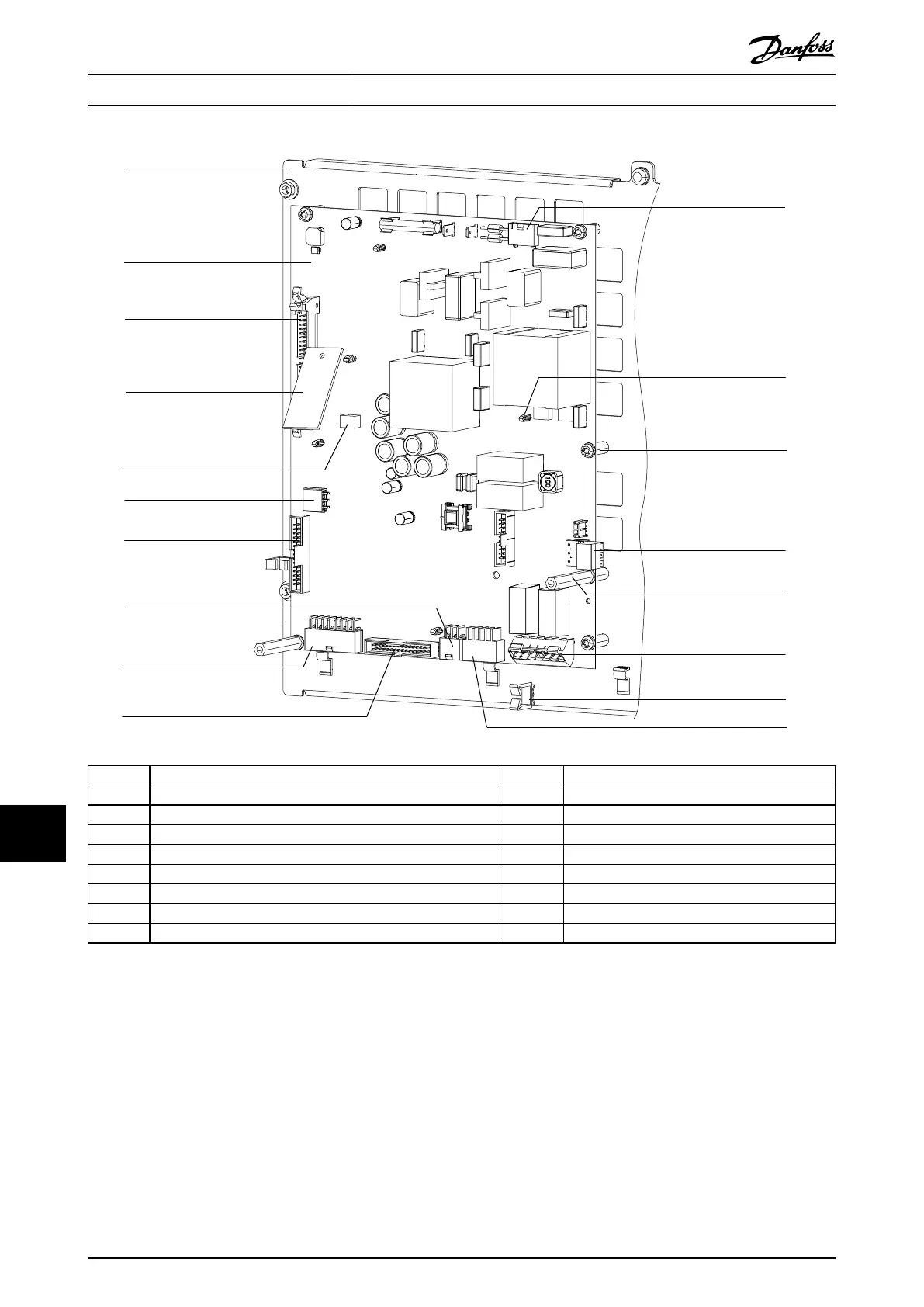
1 Power card mounting plate 10 MK103 (to gate drive card)
2 Power card 11 MK902 (to fan power card MK803)
3 MK102 (connector to control card ribbon cable) 12 Plastic stando
4 Current scaling card 13 Screw (T20)
5 MK100 (current scaling card connector) 14 MK106 (to brake temperature switch)
6 MK105 (to fan power card MK1200) 15 Metal stando (7 mm)
7 MK104 (signal test connector) 16 MK500 (to customer relays)
8 MK502 (to EMC relays) 17 Cable retaining clip
9 MK101 (to current sensors) 18 MK501 (to mixing fans)
Illustration 13.3 Power Card
E1h–E4h Drive Disassembly a...
VLT
®
FC Series, D1h–D8h, Da2/Db2/Da4/Db4, E1h–E4h, J8/J9
266 Danfoss A/S © 02/2019 All rights reserved. MG94A502
1313

Table of Contents

Other manuals for Danfoss VLT HVAC Drive FC 102

Related product manuals